

We also include a list of building specifications, and notes for each page, with any important info the builder may need.
Total Heated Area
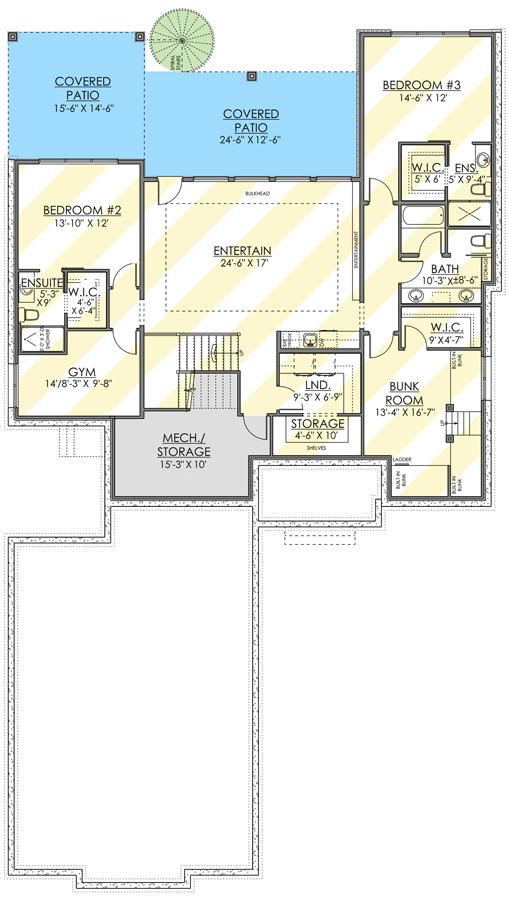
2,209 sq. ft.
1st Floor
2,209 sq. ft.
Optional Lower Level
1,786 sq. ft.
Bedrooms
2, 3, or 4
Full bathrooms
2, 3, 4, or 5
Standard Foundations
Walkout
Exterior Walls
2x6
Width
56' 2"
Depth
97' 6"
Max Ridge Height
26' 8"
Type
Attached
Area
1178 sq. ft.
Count
3 Cars
Entry Location
Courtyard
Lower Level
10'
First Floor
10'
Primary Pitch
8 on 12
Secondary Pitch
10 on 12
Framing Type
Truss
Total Heated Area
2,209 sq. ft.
1st Floor
2,209 sq. ft.
Optional Lower Level
1,786 sq. ft.
Bedrooms
2, 3, or 4
Full bathrooms
2, 3, 4, or 5
Standard Foundations
Walkout
Exterior Walls
2x6
Width
56' 2"
Depth
97' 6"
Max Ridge Height
26' 8"
Type
Attached
Area
1178 sq. ft.
Count
3 Cars
Entry Location
Courtyard
Lower Level
10'
First Floor
10'
Primary Pitch
8 on 12
Secondary Pitch
10 on 12
Framing Type
Truss