





Total Heated Area
4,897 sq. ft.
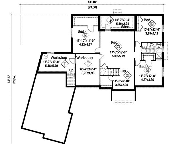
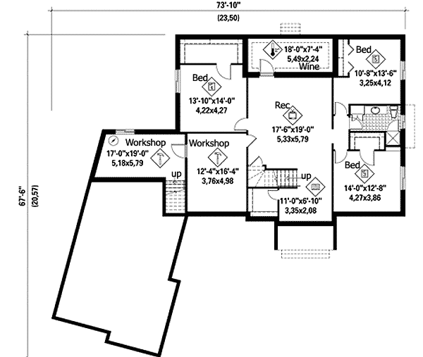
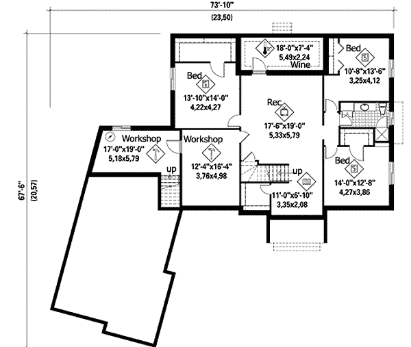
Lower Level
2,059 sq. ft.
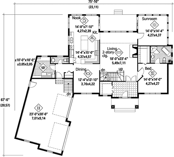
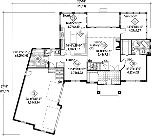
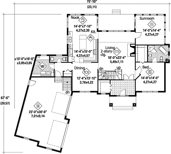
1st Floor
1,900 sq. ft.
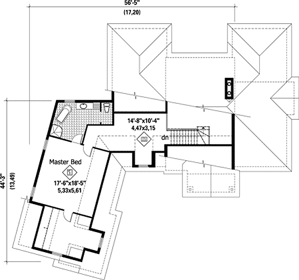
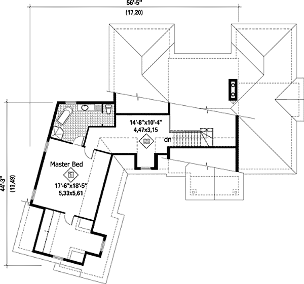
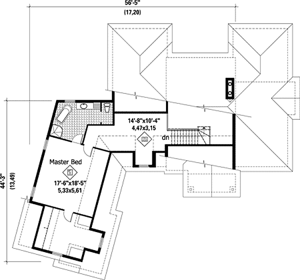
2nd Floor
938 sq. ft.
Bedrooms
5
Full bathrooms
3
Half bathrooms
2
Standard Foundations
Basement, Walkout
Exterior Walls
2x6
Width
73' 10"
Depth
67' 6"
Max Ridge Height
30' 0"
Type
Attached
Area
756 sq. ft.
Count
3 Cars
Entry Location
Courtyard
First Floor
8'
Primary Pitch
12 on 12
Secondary Pitch
12 on 12
Framing Type
Truss
Total Heated Area
4,897 sq. ft.
Lower Level
2,059 sq. ft.
1st Floor
1,900 sq. ft.
2nd Floor
938 sq. ft.
Bedrooms
5
Full bathrooms
3
Half bathrooms
2
Standard Foundations
Basement, Walkout
Exterior Walls
2x6
Width
73' 10"
Depth
67' 6"
Max Ridge Height
30' 0"
Type
Attached
Area
756 sq. ft.
Count
3 Cars
Entry Location
Courtyard
First Floor
8'
Primary Pitch
12 on 12
Secondary Pitch
12 on 12
Framing Type
Truss