


Total Heated Area
1,512 sq. ft.
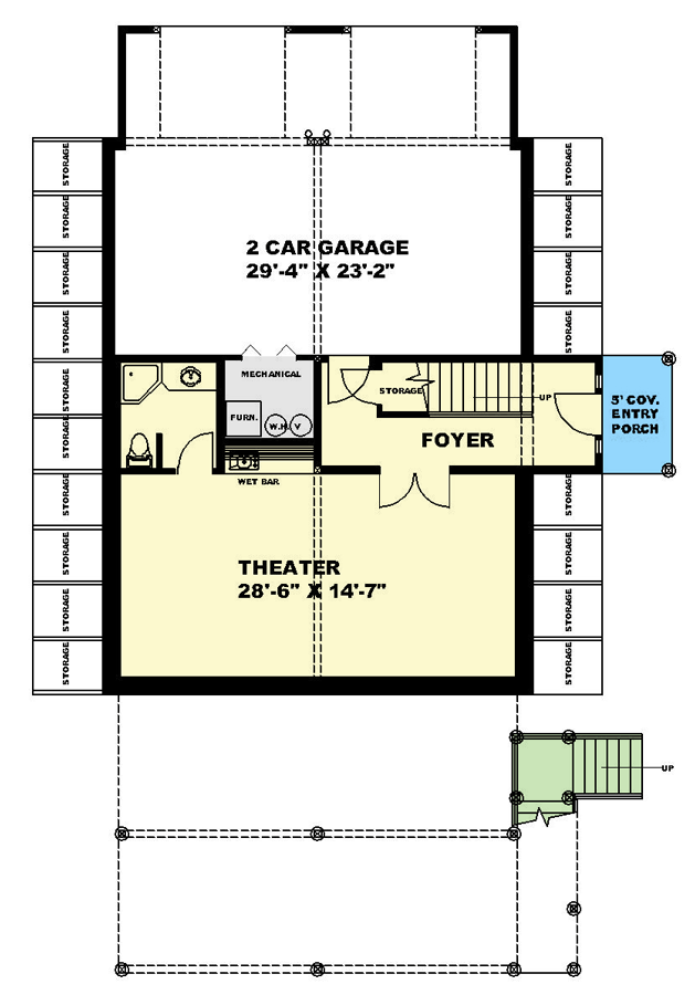
Lower Level
759 sq. ft.
1st Floor
1,162 sq. ft.
2nd Floor
437 sq. ft.
Bedrooms
2
Full bathrooms
3
Standard Foundations
Slab
Exterior Walls
2x6
Width
46' 0"
Depth
68' 0"
Max Ridge Height
39' 2"
Type
Attached, Drive Under
Area
753 sq. ft.
Count
2 Cars
Entry Location
Side
Lower Level
9'
First Floor
24' 6"
Second Floor
8'
Primary Pitch
21 on 12
Secondary Pitch
7 on 12
Total Heated Area
1,512 sq. ft.
Lower Level
759 sq. ft.
1st Floor
1,162 sq. ft.
2nd Floor
437 sq. ft.
Bedrooms
2
Full bathrooms
3
Standard Foundations
Slab
Exterior Walls
2x6
Width
46' 0"
Depth
68' 0"
Max Ridge Height
39' 2"
Type
Attached, Drive Under
Area
753 sq. ft.
Count
2 Cars
Entry Location
Side
Lower Level
9'
First Floor
24' 6"
Second Floor
8'
Primary Pitch
21 on 12
Secondary Pitch
7 on 12