Exclusive


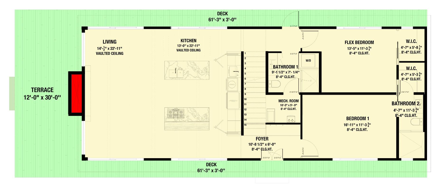
Total Heated Area
2,290 sq. ft.
1st Floor
1,488 sq. ft.
2nd Floor
802 sq. ft.
Deck & Porch
713 sq. ft.
Bedrooms
3
Full bathrooms
3
Standard Foundations
Crawl
Exterior Walls
2x6
Width
74' 0"
Depth
30' 0"
Max Ridge Height
24' 8"
Lower Level
8' 4"
Room
Ceiling Type
Height
Living Room
Vaulted
12' 11''
Kitchen
Vaulted
12' 11''
Loft
Vaulted
3' 6''
Primary Pitch
10 on 12
Framing Type
Truss
Total Heated Area
2,290 sq. ft.
1st Floor
1,488 sq. ft.
2nd Floor
802 sq. ft.
Deck & Porch
713 sq. ft.
Bedrooms
3
Full bathrooms
3
Standard Foundations
Crawl
Exterior Walls
2x6
Width
74' 0"
Depth
30' 0"
Max Ridge Height
24' 8"
Lower Level
8' 4"
Room
Ceiling Type
Height
Living Room
Vaulted
12' 11''
Kitchen
Vaulted
12' 11''
Loft
Vaulted
3' 6''
Primary Pitch
10 on 12
Framing Type
Truss