

Total Heated Area
4,677 sq. ft.
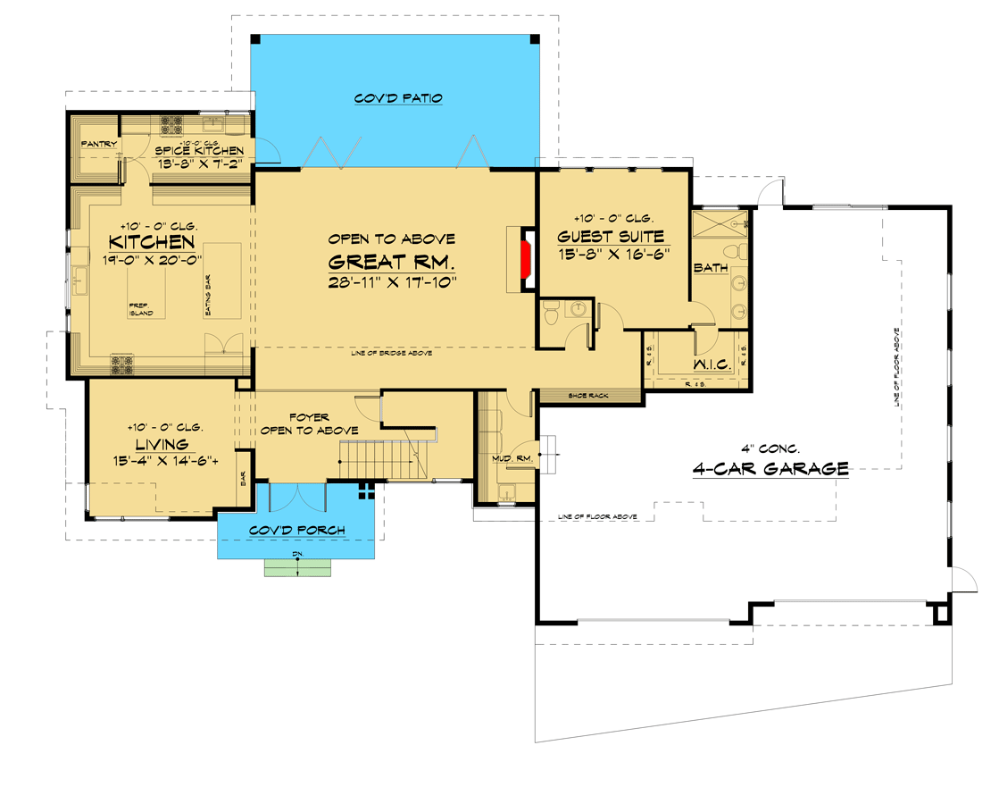
1st Floor
2,380 sq. ft.
2nd Floor
2,297 sq. ft.
Porch, Front
121 sq. ft.
Deck
140 sq. ft.
Bedrooms
5
Full bathrooms
5
Half bathrooms
1
Standard Foundations
Crawl
Exterior Walls
2x6
Width
93' 6"
Depth
54' 4"
Max Ridge Height
27' 5"
Type
Attached
Area
1428 sq. ft.
Count
6 Cars
Entry Location
Front
First Floor
10'
Second Floor
9'
Primary Pitch
4 on 12
Framing Type
Truss
Total Heated Area
4,677 sq. ft.
1st Floor
2,380 sq. ft.
2nd Floor
2,297 sq. ft.
Porch, Front
121 sq. ft.
Deck
140 sq. ft.
Bedrooms
5
Full bathrooms
5
Half bathrooms
1
Standard Foundations
Crawl
Exterior Walls
2x6
Width
93' 6"
Depth
54' 4"
Max Ridge Height
27' 5"
Type
Attached
Area
1428 sq. ft.
Count
6 Cars
Entry Location
Front
First Floor
10'
Second Floor
9'
Primary Pitch
4 on 12
Framing Type
Truss