LogoLogo TaglineLogo Tagline
Loading...
Plan 680137VR

2970 Sq Ft House Plan with Vaulted Interior with Vaulted Front and Rear Porches

Heated S.F.
2,970
Beds
3 - 5
Baths
3
Stories
2
Cars
2

Floor Plan

Plan 680137VR

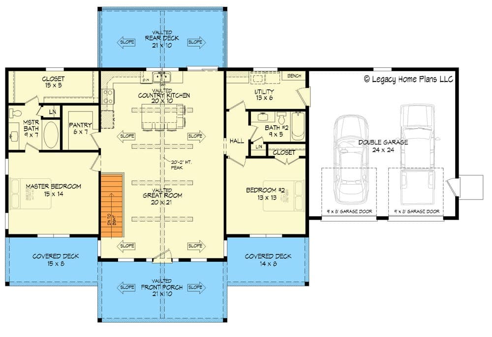
Main Level
Main Level
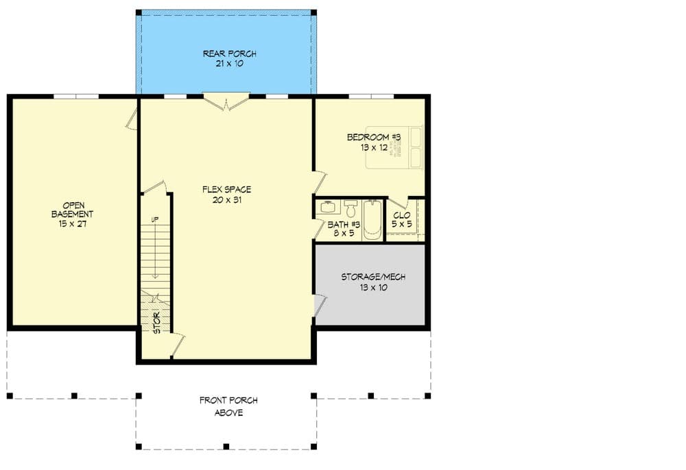
Finished Basement
Finished Basement

Plan 680137VR

M-F 9am-5pm EST |

1-203-761-8500

Main Level

Plan 680137VR: 2970 Sq Ft House Plan with Vaulted Interior with Vaulted Front and Rear Porches - Floor Plan - Main Level - Country, French Country, Traditional

Finished Basement

Plan 680137VR: 2970 Sq Ft House Plan with Vaulted Interior with Vaulted Front and Rear Porches - Floor Plan - Finished Basement - Country, French Country, Traditional

Plan Details

  • Vaulted porches adorn both the front and back of this 3-bed house plan making it equally attractive whether you're greeting from the street or from the lake. A door centered on the 10'-deep front porch pair - flanked by two 8'-deep covered decks - open to reveal a dramatic vaulted interior and a floor plan open front to back. 
  • The great room is vaulted front to back, matching the porch vault line. The kitchen is in back and has a double sink centered on the vault and below a window.
  • The master bedroom has a large walk-in closet and private bath is adjacent to the hall bath and the laundry a few extra steps away.
  • Below, a large flex space is open front to back. A third bedroom with bath, storage and an open basement area complete the plan.
  • Related Plan: Get an alternate version with a 3-car garage with house plan 680146VR and a version without the basement with house plan 680106VR.

What's Included

  • Floor Plans: House plan drawings indicating dimensions for construction
  • Roof Plan: Drawings indicating roof slopes and unique conditions
  • Exterior Elevations: Drawings showing appearance and the types of materials used for the exterior finish and trim
  • Building Sections: Drawings cut through important locations in the structure
  • Construction Details: Drawings showing specific construction of building elements at a large scale
  • Kitchen and bath elevations (excluded on garage plans)
  • Electrical Plans: Basic electrical layout (suggested locations of fixtures, switches and outlets)
  • Foundation Plan: Dimensioned drawings describing specific foundation conditions for the structure
  • Building license: A single-use license for construction at one location only

View Sample Plan

What's Not Included

  • Architectural or Engineering Stamp - handled locally if required
  • Site Plan - handled locally when required
  • Mechanical Drawings (location of heating and air equipment and duct work) - your subcontractors handle this
  • Plumbing Drawings (drawings showing the actual plumbing pipe sizes and locations) - your subcontractors handle this
  • Energy calculations - handled locally when required

Starting at

Loading...
Price Match Guarantee
What's included?

FORMAT & LICENSE

Choose an option

$0

Not sure what to choose?

Pointer link icon

FOUNDATION

Choose an option

+$0

OPTIONS

Choose Additional Options

+$0

Loading...

Modify this Plan

Receive a free modification quote within 3 business days.

Loading...

Start with a Cost Report

Calculate the cost to build & furnish your home.

Loading...
Loading...

Square Footage Breakdown

Total Heated Area

2,970 sq. ft.

Lower Level

1,485 sq. ft.

1st Floor

1,485 sq. ft.

Porch, Front

443 sq. ft.

Porch, Rear

213 sq. ft.

Beds/Baths

Bedrooms

3, 4, or 5

Full bathrooms

3

Foundation Type

Standard Foundations

Slab

Exterior Walls

Exterior Walls

2x4

Dimensions

Width

69' 7"

Depth

57' 1"

Max Ridge Height

28' 6"

Garage

Type

Attached

Area

619 sq. ft.

Count

2 Cars

Entry Location

Courtyard

Ceiling Heights

First Floor

9'

Second Floor

8'

Roof Details

Primary Pitch

14 on 12

Secondary Pitch

10 on 12

Framing Type

Stick

Architectural Style

Country

Plan Collections

Square Footage Breakdown

Total Heated Area

2,970 sq. ft.

Lower Level

1,485 sq. ft.

1st Floor

1,485 sq. ft.

Porch, Front

443 sq. ft.

Porch, Rear

213 sq. ft.

Beds/Baths

Bedrooms

3, 4, or 5

Full bathrooms

3

Foundation Type

Standard Foundations

Slab

Exterior Walls

Exterior Walls

2x4

Dimensions

Width

69' 7"

Depth

57' 1"

Max Ridge Height

28' 6"

Garage

Type

Attached

Area

619 sq. ft.

Count

2 Cars

Entry Location

Courtyard

Ceiling Heights

First Floor

9'

Second Floor

8'

Roof Details

Primary Pitch

14 on 12

Secondary Pitch

10 on 12

Framing Type

Stick

Plan Collections

* Please note that all sale prices and promotions featured on our website are subject to change without prior notice. While we strive to provide accurate and up-to-date information, occasional discrepancies may occur due to factors beyond our control. We encourage you to verify all details, including pricing and availability, before making any purchase. Exclusions or restrictions may apply to specific promotions. We reserve the right to modify or cancel any sale at our discretion. Thank you for your understanding and happy shopping!Let's go back to the top.