

Total Heated Area
1,343 sq. ft.
1st Floor
768 sq. ft.
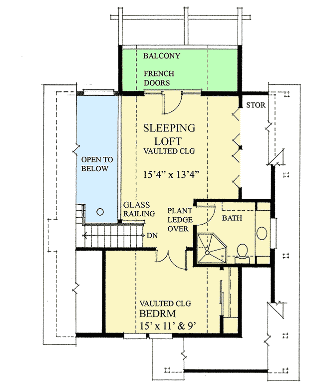
2nd Floor
575 sq. ft.
Porch, Front
72 sq. ft.
Deck
600 sq. ft.
Bedrooms
3
Full bathrooms
2
Standard Foundations
Crawl
Exterior Walls
2x6
Width
36' 0"
Depth
46' 6"
Primary Pitch
12 on 12
Total Heated Area
1,343 sq. ft.
1st Floor
768 sq. ft.
2nd Floor
575 sq. ft.
Porch, Front
72 sq. ft.
Deck
600 sq. ft.
Bedrooms
3
Full bathrooms
2
Standard Foundations
Crawl
Exterior Walls
2x6
Width
36' 0"
Depth
46' 6"
Primary Pitch
12 on 12