LogoLogo TaglineLogo Tagline
Loading...
Plan 68788VR

3-Bed Country Cottage Plan with Wraparound Covered Porch

Heated S.F.
2,237
Beds
3
Baths
2.5 - 3.5
Stories
2

Floor Plan

Plan 68788VR

Main Level
Main Level
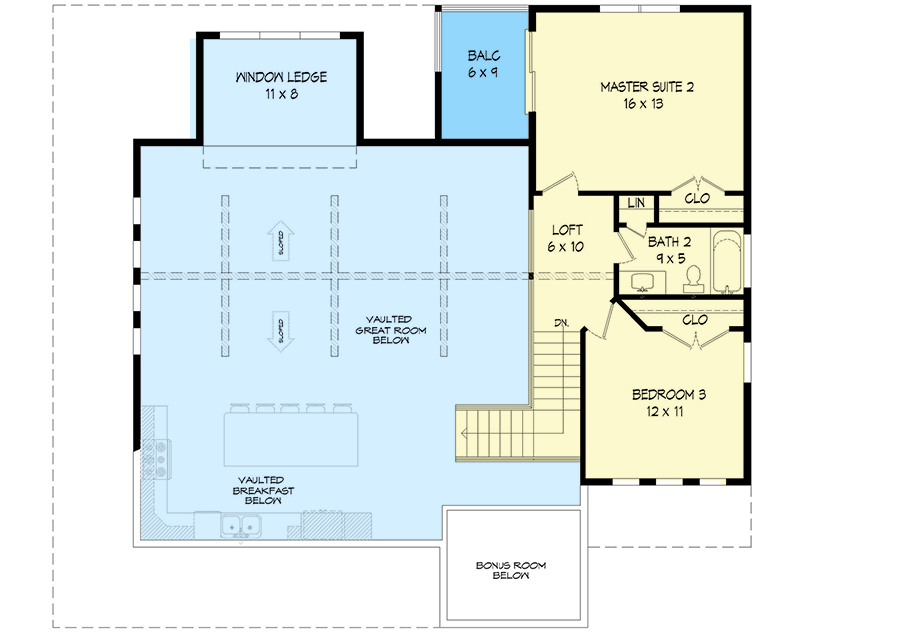
2nd Floor
2nd Floor
Unfinished Basement
Unfinished Basement

Plan 68788VR

M-F 9am-5pm EST |

1-203-761-8500

Main Level

Plan 68788VR: 3-Bed Country Cottage Plan with Wraparound Covered Porch - Floor Plan - Main Level - Cottage, Country, Farmhouse, Mountain

2nd Floor

Plan 68788VR: 3-Bed Country Cottage Plan with Wraparound Covered Porch - Floor Plan - 2nd Floor - Cottage, Country, Farmhouse, Mountain

Unfinished Basement

Plan 68788VR: 3-Bed Country Cottage Plan with Wraparound Covered Porch - Floor Plan - Unfinished Basement - Cottage, Country, Farmhouse, Mountain

Plan Details

  • This 3 bed house plan has two master suites and is perfectly suited for your country lot with a view. The exterior has blend of board and batten siding and stone and has a rugged standing seam metal roof.
  • The main entry is off the wraparound porch and takes you into the open floor plan. The kitchen has unimpeded views across the vaulted great room with corner fireplace and to the covered back porch beyond.
  • A covered side entry leads into a large mudroom/laundry room featuring a half-bath with steam shower.
  • An included bonus room/flex space between the main entry and mudroom is a perfect home office space.
  • The main floor master has back porch access through sliding doors. The 2nd level master bedroom has its own private balcony. 
  • Upstairs, a loft area overlooks the vaulted great room below and connects the full bath, upper master bedroom and 3rd bedroom.
  • Related Plans: Get an alternate version with house plans 68505VR68695VR and 68625VR (on a walkout basement), 680062VR68755VR and 680089VR

What's Included

  • Floor Plans: House plan drawings indicating dimensions for construction
  • Roof Plan: Drawings indicating roof slopes and unique conditions
  • Exterior Elevations: Drawings showing appearance and the types of materials used for the exterior finish and trim
  • Building Sections: Drawings cut through important locations in the structure
  • Construction Details: Drawings showing specific construction of building elements at a large scale
  • Kitchen and bath elevations (excluded on garage plans)
  • Electrical Plans: Basic electrical layout (suggested locations of fixtures, switches and outlets)
  • Foundation Plan: Dimensioned drawings describing specific foundation conditions for the structure
  • Building license: A single-use license for construction at one location only

View Sample Plan

What's Not Included

  • Architectural or Engineering Stamp - handled locally if required
  • Site Plan - handled locally when required
  • Mechanical Drawings (location of heating and air equipment and duct work) - your subcontractors handle this
  • Plumbing Drawings (drawings showing the actual plumbing pipe sizes and locations) - your subcontractors handle this
  • Energy calculations - handled locally when required

Starting at

Loading...
Price Match Guarantee
What's included?

FORMAT & LICENSE

Choose an option

$0

Not sure what to choose?

Pointer link icon

FOUNDATION

Choose an option

+$0

OPTIONS

Choose Additional Options

+$0

Loading...

Modify this Plan

Receive a free modification quote within 3 business days.

Loading...

Start with a Cost Report

Calculate the cost to build & furnish your home.

Loading...
Loading...

Square Footage Breakdown

Total Heated Area

2,237 sq. ft.

1st Floor

1,640 sq. ft.

2nd Floor

597 sq. ft.

Basement Unfinished

1,640 sq. ft.

Porch, Combined

822 sq. ft.

Beds/Baths

Bedrooms

3

Full bathrooms

2 or 3

Half bathrooms

1

Foundation Type

Standard Foundations

Walkout

Exterior Walls

Exterior Walls

2x6

Dimensions

Width

62' 2"

Depth

46' 6"

Max Ridge Height

26' 8"

Ceiling Heights

Lower Level

9'

First Floor

9'

Second Floor

8'

Roof Details

Primary Pitch

10 on 12

Secondary Pitch

5 on 12

Framing Type

Stick

Architectural Style

Cottage

Square Footage Breakdown

Total Heated Area

2,237 sq. ft.

1st Floor

1,640 sq. ft.

2nd Floor

597 sq. ft.

Basement Unfinished

1,640 sq. ft.

Porch, Combined

822 sq. ft.

Beds/Baths

Bedrooms

3

Full bathrooms

2 or 3

Half bathrooms

1

Foundation Type

Standard Foundations

Walkout

Exterior Walls

Exterior Walls

2x6

Dimensions

Width

62' 2"

Depth

46' 6"

Max Ridge Height

26' 8"

Ceiling Heights

Lower Level

9'

First Floor

9'

Second Floor

8'

Roof Details

Primary Pitch

10 on 12

Secondary Pitch

5 on 12

Framing Type

Stick

* Please note that all sale prices and promotions featured on our website are subject to change without prior notice. While we strive to provide accurate and up-to-date information, occasional discrepancies may occur due to factors beyond our control. We encourage you to verify all details, including pricing and availability, before making any purchase. Exclusions or restrictions may apply to specific promotions. We reserve the right to modify or cancel any sale at our discretion. Thank you for your understanding and happy shopping!Let's go back to the top.