


Total Heated Area
1,680 sq. ft.
1st Floor
858 sq. ft.
2nd Floor
822 sq. ft.
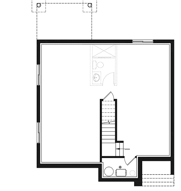
Basement Unfinished
858 sq. ft.
Porch, Front
21 sq. ft.
Bedrooms
3
Full bathrooms
1
Half bathrooms
1
Standard Foundations
Basement
Exterior Walls
2x6
Width
30' 0"
Depth
32' 0"
Max Ridge Height
22' 0"
Lower Level
8'
First Floor
8'
Second Floor
8'
Framing Type
Truss
Total Heated Area
1,680 sq. ft.
1st Floor
858 sq. ft.
2nd Floor
822 sq. ft.
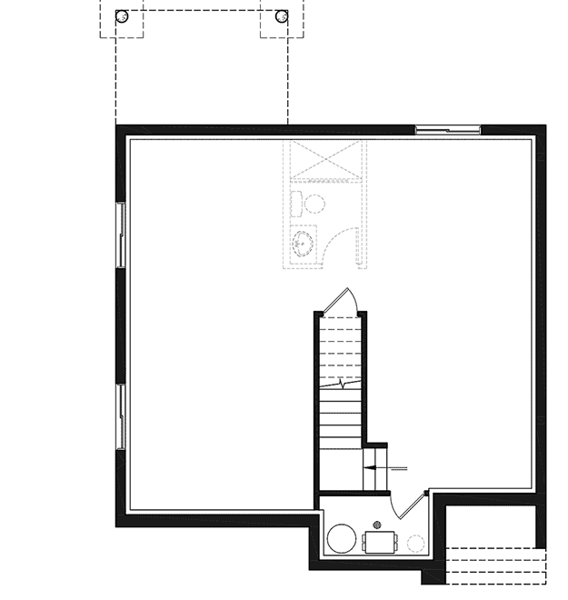
Basement Unfinished
858 sq. ft.
Porch, Front
21 sq. ft.
Bedrooms
3
Full bathrooms
1
Half bathrooms
1
Standard Foundations
Basement
Exterior Walls
2x6
Width
30' 0"
Depth
32' 0"
Max Ridge Height
22' 0"
Lower Level
8'
First Floor
8'
Second Floor
8'
Framing Type
Truss