


We also include a list of building specifications, and notes for each page, with any important info the builder may need.
Total Heated Area
4,756 sq. ft.
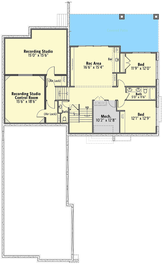
Lower Level
1,918 sq. ft.
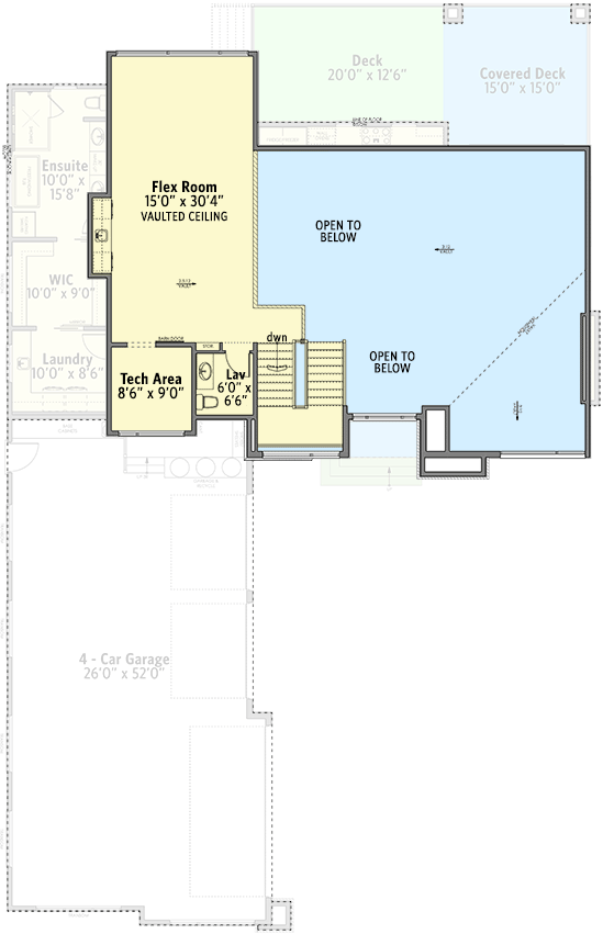
1st Floor
2,180 sq. ft.
2nd Floor
658 sq. ft.
Optional Lower Level
1,902 sq. ft.
Bedrooms
2 or 3
Full bathrooms
2 or 3
Half bathrooms
2
Standard Foundations
Walkout
Exterior Walls
2x6
Width
61' 8"
Depth
92' 6"
Max Ridge Height
26' 10"
Type
Attached
Count
4 Cars
Entry Location
Side, Courtyard
First Floor
10' 1"
Second Floor
9'
Primary Pitch
2.5 on 12
Framing Type
Truss
Total Heated Area
4,756 sq. ft.
Lower Level
1,918 sq. ft.
1st Floor
2,180 sq. ft.
2nd Floor
658 sq. ft.
Optional Lower Level
1,902 sq. ft.
Bedrooms
2 or 3
Full bathrooms
2 or 3
Half bathrooms
2
Standard Foundations
Walkout
Exterior Walls
2x6
Width
61' 8"
Depth
92' 6"
Max Ridge Height
26' 10"
Type
Attached
Count
4 Cars
Entry Location
Side, Courtyard
First Floor
10' 1"
Second Floor
9'
Primary Pitch
2.5 on 12
Framing Type
Truss