

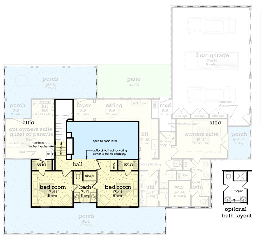
Total Heated Area
2,410 sq. ft.
1st Floor
1,940 sq. ft.
2nd Floor
470 sq. ft.
Porch, Combined
902 sq. ft.
Bedrooms
4
Full bathrooms
3
Half bathrooms
1
Standard Foundations
Slab
Exterior Walls
2x4
Width
75' 0"
Depth
69' 0"
Max Ridge Height
26' 0"
Type
Attached
Area
890 sq. ft.
Count
3 Cars
Entry Location
Side
First Floor
9'
Second Floor
8'
Framing Type
Stick
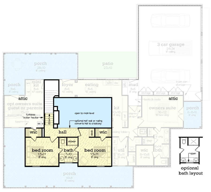
Total Heated Area
2,410 sq. ft.
1st Floor
1,940 sq. ft.
2nd Floor
470 sq. ft.
Porch, Combined
902 sq. ft.
Bedrooms
4
Full bathrooms
3
Half bathrooms
1
Standard Foundations
Slab
Exterior Walls
2x4
Width
75' 0"
Depth
69' 0"
Max Ridge Height
26' 0"
Type
Attached
Area
890 sq. ft.
Count
3 Cars
Entry Location
Side
First Floor
9'
Second Floor
8'
Framing Type
Stick