LogoLogo TaglineLogo Tagline
Loading...
Plan 81642AB

4-Bed Traditional House Plan with Spacious Outdoor Living - 4200 Sq Ft

Heated S.F.
4,200
Beds
3 - 4
Baths
3.5
Stories
2
Cars
4

Floor Plan

Plan 81642AB

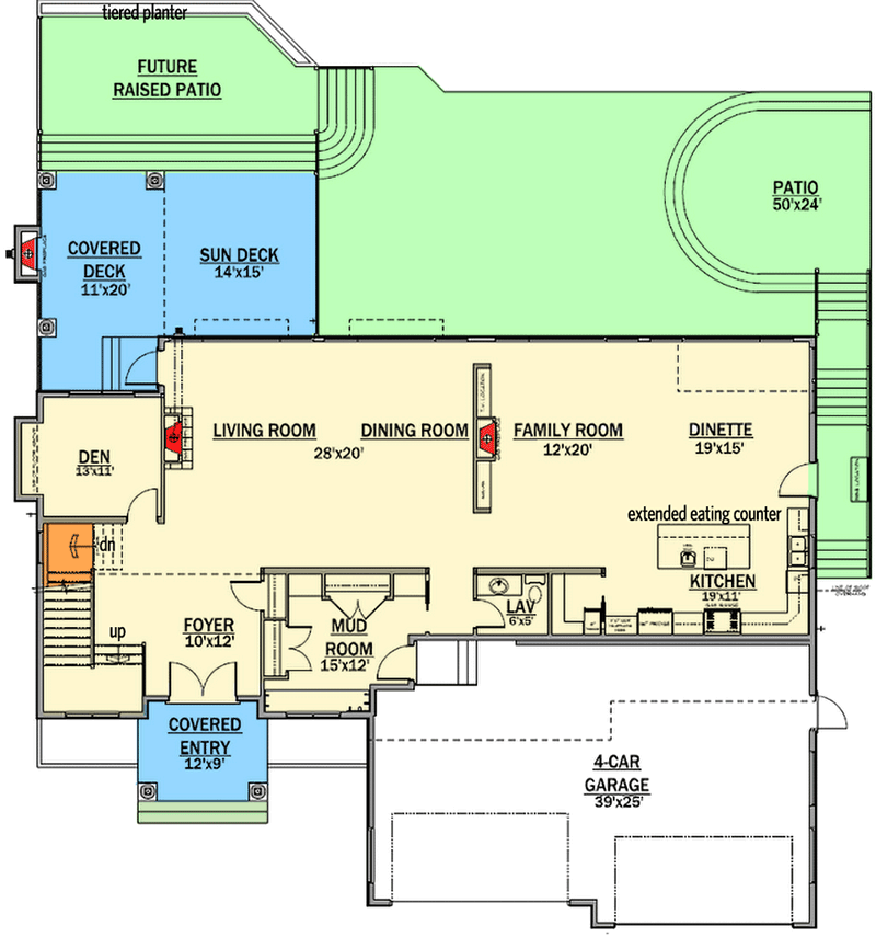
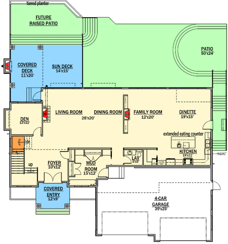
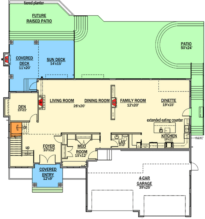
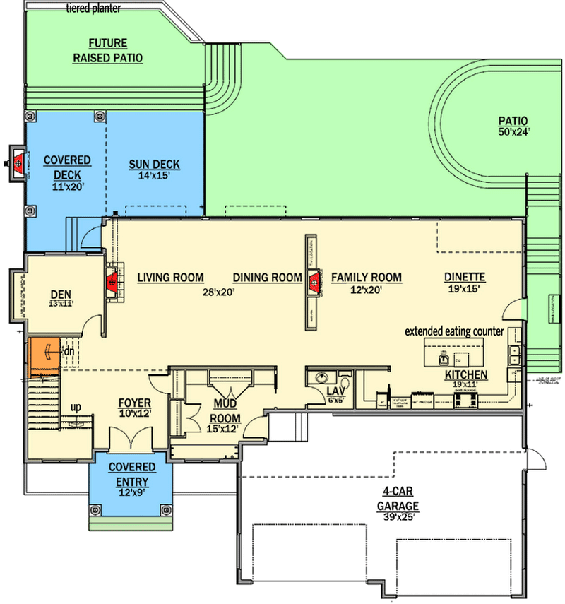
Main Level
Main Level
2nd Floor
2nd Floor

Plan 81642AB

M-F 9am-5pm EST |

1-203-761-8500

Main Level

Plan 81642AB: 4-Bed Traditional House Plan with Spacious Outdoor Living - 4200 Sq Ft - Floor Plan - Main Level - Northwest, Traditional

2nd Floor

Plan 81642AB: 4-Bed Traditional House Plan with Spacious Outdoor Living - 4200 Sq Ft - Floor Plan - 2nd Floor - Northwest, Traditional

Plan Details

  • Four large bedrooms, two dens and lots of outdoor space makes this Traditional home ideal for the large family.
  • Both the formal and informal areas of the home have open concept layouts yet when you want some alone time, you have a study or den on each floor.
  • An extended eating counter in the kitchen is large enough for four or five seats.
  • The outdoor space was designed with open and covered spaces plus a raised patio with a tiered planter for all your greenery and flowers.
  • Every bedroom on the second floor gets a walk-in closet and easy access to the laundry room.
  • The study on this level has sliding glass doors to an outdoor balcony.

What's Included

  • Elevations (Front, Rear, Left and Right)
  • Floor plans
  • Foundation plan
  • Cross section
  • Roof plan

We also include a list of building specifications, and notes for each page, with any important info the builder may need.

View Sample Plan

What's Not Included

  • Electrical plan
  • Architectural or Engineering Stamp - handled locally if required 
  • Site Plan - handled locally when required
  • Mechanical Drawings (location of heating and air equipment and duct work) - your subcontractors handle this
  • Plumbing Drawings (drawings showing the actual plumbing pipe sizes and locations) - your subcontractors handle this
  • Energy calculations - handled locally when required

Starting at

Loading...
Price Match Guarantee
What's included?

FORMAT & LICENSE

Choose an option

$0

Not sure what to choose?

Pointer link icon

FOUNDATION

Choose an option

+$0

OPTIONS

Choose Additional Options

+$0

Loading...

Modify this Plan

Receive a free modification quote within 3 business days.

Loading...

Start with a Cost Report

Calculate the cost to build & furnish your home.

Loading...
Loading...

Square Footage Breakdown

Total Heated Area

4,200 sq. ft.

1st Floor

2,116 sq. ft.

2nd Floor

2,084 sq. ft.

Basement Unfinished

1,580 sq. ft.

Deck

1,916 sq. ft.

Balcony / Veranda

209 sq. ft.

Beds/Baths

Bedrooms

3 or 4

Full bathrooms

3

Half bathrooms

1

Foundation Type

Standard Foundations

Walkout

Exterior Walls

Exterior Walls

2x6

Dimensions

Width

84' 0"

Depth

78' 0"

Max Ridge Height

33' 2"

Garage

Type

Attached

Area

998 sq. ft.

Count

4 Cars

Entry Location

Front

Ceiling Heights

First Floor

10'

Second Floor

9'

Roof Details

Primary Pitch

4 on 12

Secondary Pitch

6 on 12

Framing Type

Truss

Architectural Style

Northwest

Plan Collections

Square Footage Breakdown

Total Heated Area

4,200 sq. ft.

1st Floor

2,116 sq. ft.

2nd Floor

2,084 sq. ft.

Basement Unfinished

1,580 sq. ft.

Deck

1,916 sq. ft.

Balcony / Veranda

209 sq. ft.

Beds/Baths

Bedrooms

3 or 4

Full bathrooms

3

Half bathrooms

1

Foundation Type

Standard Foundations

Walkout

Exterior Walls

Exterior Walls

2x6

Dimensions

Width

84' 0"

Depth

78' 0"

Max Ridge Height

33' 2"

Garage

Type

Attached

Area

998 sq. ft.

Count

4 Cars

Entry Location

Front

Ceiling Heights

First Floor

10'

Second Floor

9'

Roof Details

Primary Pitch

4 on 12

Secondary Pitch

6 on 12

Framing Type

Truss

Architectural Style

Plan Collections

* Please note that all sale prices and promotions featured on our website are subject to change without prior notice. While we strive to provide accurate and up-to-date information, occasional discrepancies may occur due to factors beyond our control. We encourage you to verify all details, including pricing and availability, before making any purchase. Exclusions or restrictions may apply to specific promotions. We reserve the right to modify or cancel any sale at our discretion. Thank you for your understanding and happy shopping!Let's go back to the top.