


Total Heated Area
4,954 sq. ft.
1st Floor
2,105 sq. ft.
2nd Floor
2,849 sq. ft.
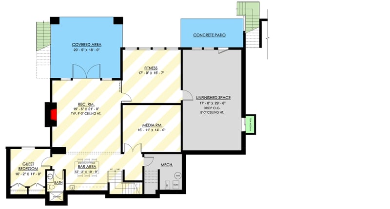
Basement Unfinished
573 sq. ft.
Optional Lower Level
1,702 sq. ft.
Apartment
911 sq. ft.
Porch, Front
78 sq. ft.
Deck
539 sq. ft.
Lanai
458 sq. ft.
Bedrooms
6 or 7
Full bathrooms
3 or 4
Half bathrooms
1
Standard Foundations
Walkout
Exterior Walls
2x6
Width
109' 2"
Depth
65' 11"
Max Ridge Height
32' 10"
Type
Attached
Area
588 sq. ft.
Count
4 Cars
Entry Location
Front, Side
Lower Level
9'
First Floor
10'
Second Floor
9'
Room
Ceiling Type
Height
Great Room
Vaulted
20' 7''
Primary Bedroom
Vaulted
14' 0''
Primary Pitch
8 on 12
Secondary Pitch
16 on 12
Framing Type
Truss
Total Heated Area
4,954 sq. ft.
1st Floor
2,105 sq. ft.
2nd Floor
2,849 sq. ft.
Basement Unfinished
573 sq. ft.
Optional Lower Level
1,702 sq. ft.
Apartment
911 sq. ft.
Porch, Front
78 sq. ft.
Deck
539 sq. ft.
Lanai
458 sq. ft.
Bedrooms
6 or 7
Full bathrooms
3 or 4
Half bathrooms
1
Standard Foundations
Walkout
Exterior Walls
2x6
Width
109' 2"
Depth
65' 11"
Max Ridge Height
32' 10"
Type
Attached
Area
588 sq. ft.
Count
4 Cars
Entry Location
Front, Side
Lower Level
9'
First Floor
10'
Second Floor
9'
Room
Ceiling Type
Height
Great Room
Vaulted
20' 7''
Primary Bedroom
Vaulted
14' 0''
Primary Pitch
8 on 12
Secondary Pitch
16 on 12
Framing Type
Truss