LogoLogo TaglineLogo Tagline
Loading...
Plan 23101JD

73-Foot Wide Modern House Plan Under 3800 Square Feet with Natural-Light Filled Second Floor

Heated S.F.
3,786
Beds
4
Baths
3
Stories
2
Cars
4

Floor Plan

Plan 23101JD

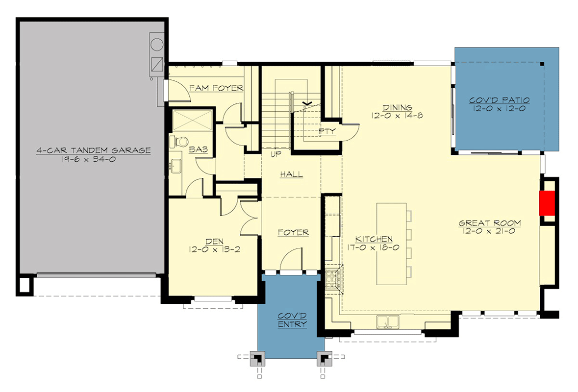
Main Level
Main Level
2nd Floor
2nd Floor

Plan 23101JD

M-F 9am-5pm EST |

1-203-761-8500

Main Level

Plan 23101JD: 73-Foot Wide Modern House Plan Under 3800 Square Feet with Natural-Light Filled Second Floor - Floor Plan - Main Level - Contemporary, Mid Century Modern, Modern, Northwest

2nd Floor

Plan 23101JD: 73-Foot Wide Modern House Plan Under 3800 Square Feet with Natural-Light Filled Second Floor - Floor Plan - 2nd Floor - Contemporary, Mid Century Modern, Modern, Northwest

Plan Details

  • This 73-foot-wide mid-century modern house plan has a second floor that gets great natural light through the large windows featured in every room. Inside, the home plan gives you 4 beds, 3 baths and 3,786 square feet of heated living space.
  • The right side of the main floor is open concept and delivers a kitchen open to a great room with fireplace and a dining area. Sliding doors on two walls get you to a 12' by 12' covered patio extending your enjoyment to the outdoors.
  • French doors off the foyer open to a den which could make a great home office.
  • Upstairs, a bonus room - factored into the total living area - can be used as a media room or play room. Two kids' bedrooms are steps away as is a shared bathroom with two sinks and laundry. The master suite overlooks the front and has a bedroom-sized walk-in closet.
  • A family entry off the 4-car tandem garage features a built-in bench and shelving to help control clutter.
  • IMPORTANT NOTE: If building in the state of Washington, your plan purchase cannot be done online.  Please contact us directly. 

What's Included

  • Cover Sheet - The cover sheet includes the general notes and building code information, design standards and structural materials specifications required to construct your home.
  • Schedule Sheet - The schedule sheet includes the roof and foundation ventilation schedules, insulation and vapor barrier specifications, and exhaust fan ventilation schedule.
  • Detail Sheet - The detail sheet shows building components at large scale as required to explain construction of footings, foundation walls, concrete slabs, framed floors and walls, posts, beams, insulation, eaves, roofs, vents, stairs, skylights, and connections.
  • Foundation Plan Sheet - The foundation plan sheet shows the layout of the crawl space, walk-out basement or slab foundation. The foundation plan includes all necessary notes, dimensions, concrete walls, footing pads, posts, beams, bearing walls, crawlspace vents, footing schedule, steel reinforcing, and structural information. If you require a different foundation type, please contact us for modifications to your plan.
  • Floor Plan Sheet - Floor plans are horizontal cuts through each floor level of the home, usually at 5' above the floor. The floor plan shows the location of interior and exterior walls, doors, windows, stairs, closets, cabinets, flooring, appliances, plumbing fixtures, fireplaces, posts and beams. Floor plans also indicate vaulted, coffered, or box beam ceilings, cased openings and areas with ceiling soffits.
  • Roof Framing Plan Sheet - The roof framing plan shows the geometry of the hips, ridges, valleys, dormers, roof pitches, wall and plate heights, and overhangs. The plan also shows all individual roof framing members, trusses, rafters, beams, skylights, roof vents, gutters, downspouts, skylights, bearing walls under framing members, and point loads.
  • Elevation Sheet - Exterior elevations show all four sides of the house, describing the roofing, siding, and trim materials, doors, windows, roof pitches, skylights, gutters, chimneys, wall heights, finish grade and overall building height. 
  • Building Section Sheet - Building sections are vertical cuts through the house from the roof to the foundation. The sections illustrate the construction sequence from bottom to top starting with excavation, proceeding up through the foundation, drainage, wall and floor framing, stair framing, roof framing, windows, doors, venting, and exterior and interior finishes. Wall plate heights for each floor are also delineated.
View Sample Plan

What's Not Included

  • Electrical Plan - handled by your subcontractor to match your individual needs
  • Architectural or Engineering Stamp - handled locally if required
  • Site Plan - handled locally when required
  • Mechanical Drawings (location of heating and air equipment and duct work) - your subcontractors handle this
  • Plumbing Drawings (drawings showing the actual plumbing pipe sizes and locations) - your subcontractors handle this
  • Energy calculations - handled locally when required

Starting at

Loading...
Price Match Guarantee
What's included?

FORMAT & LICENSE

Choose an option

$0

Not sure what to choose?

Pointer link icon

FOUNDATION

Choose an option

+$0

OPTIONS

Choose Additional Options

+$0

Loading...

Modify this Plan

Receive a free modification quote within 3 business days.

Loading...

Start with a Cost Report

Calculate the cost to build & furnish your home.

Loading...
Loading...

Square Footage Breakdown

Total Heated Area

3,786 sq. ft.

1st Floor

1,504 sq. ft.

2nd Floor

2,282 sq. ft.

Beds/Baths

Bedrooms

4

Full bathrooms

3

Foundation Type

Standard Foundations

Crawl

Exterior Walls

Exterior Walls

2x6

Dimensions

Width

73' 0"

Depth

46' 0"

Max Ridge Height

24' 0"

Garage

Type

Attached

Area

663 sq. ft.

Count

4 Cars

Entry Location

Front

Ceiling Heights

First Floor

9'

Second Floor

9'

Roof Details

Primary Pitch

3 on 12

Architectural Style

Contemporary

Plan Collections

Square Footage Breakdown

Total Heated Area

3,786 sq. ft.

1st Floor

1,504 sq. ft.

2nd Floor

2,282 sq. ft.

Beds/Baths

Bedrooms

4

Full bathrooms

3

Foundation Type

Standard Foundations

Crawl

Exterior Walls

Exterior Walls

2x6

Dimensions

Width

73' 0"

Depth

46' 0"

Max Ridge Height

24' 0"

Garage

Type

Attached

Area

663 sq. ft.

Count

4 Cars

Entry Location

Front

Ceiling Heights

First Floor

9'

Second Floor

9'

Roof Details

Primary Pitch

3 on 12

Plan Collections

* Please note that all sale prices and promotions featured on our website are subject to change without prior notice. While we strive to provide accurate and up-to-date information, occasional discrepancies may occur due to factors beyond our control. We encourage you to verify all details, including pricing and availability, before making any purchase. Exclusions or restrictions may apply to specific promotions. We reserve the right to modify or cancel any sale at our discretion. Thank you for your understanding and happy shopping!Let's go back to the top.