

Total Heated Area
3,886 sq. ft.
1st Floor
2,729 sq. ft.
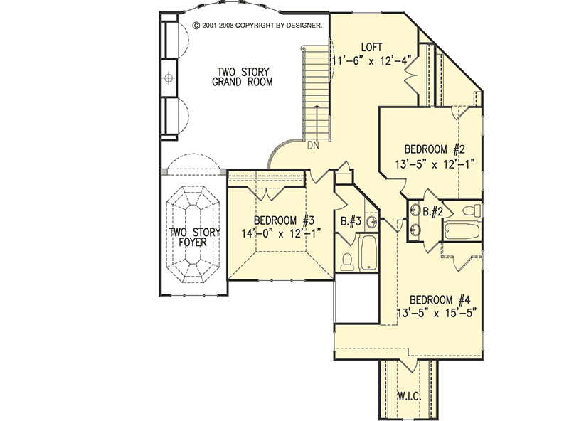
2nd Floor
1,157 sq. ft.
Bedrooms
4
Full bathrooms
3
Half bathrooms
1
Standard Foundations
Walkout
Exterior Walls
2x4
Optional Type(s)
2x6
Width
73' 2"
Depth
70' 4"
Type
Attached
Area
569 sq. ft.
Count
3 Cars
Entry Location
Side
Lower Level
9'
First Floor
9'
Second Floor
9'
Primary Pitch
10 on 12
Total Heated Area
3,886 sq. ft.
1st Floor
2,729 sq. ft.
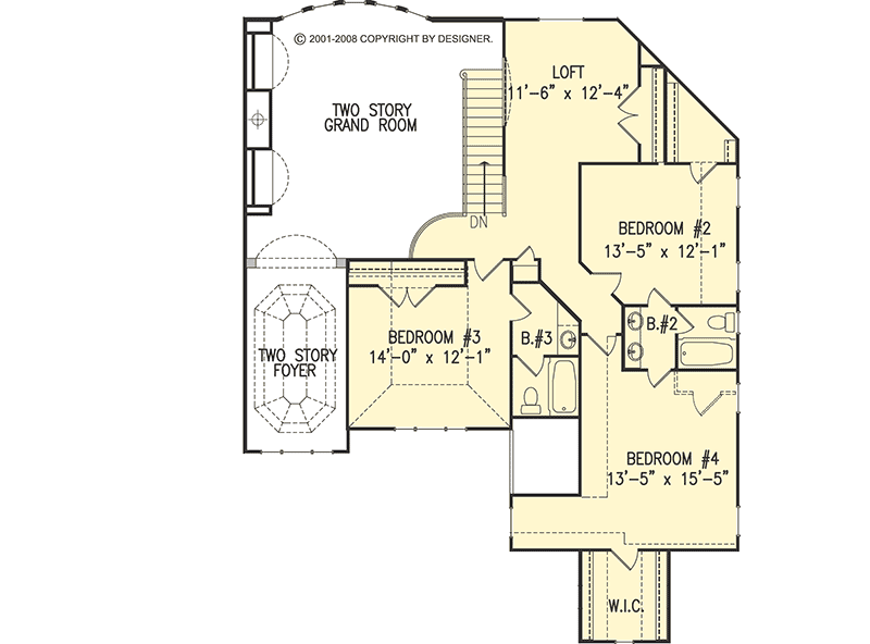
2nd Floor
1,157 sq. ft.
Bedrooms
4
Full bathrooms
3
Half bathrooms
1
Standard Foundations
Walkout
Exterior Walls
2x4
Optional Type(s)
2x6
Width
73' 2"
Depth
70' 4"
Type
Attached
Area
569 sq. ft.
Count
3 Cars
Entry Location
Side
Lower Level
9'
First Floor
9'
Second Floor
9'
Primary Pitch
10 on 12