

Total Heated Area
1,764 sq. ft.
1st Floor
1,064 sq. ft.
2nd Floor
700 sq. ft.
Porch, Combined
608 sq. ft.
Bedrooms
3
Full bathrooms
2
Half bathrooms
1
Standard Foundations
Crawl, Slab
Exterior Walls
2x4
Optional Type(s)
2x6
Width
38' 0"
Depth
44' 0"
Max Ridge Height
26' 0"
First Floor
9'
Second Floor
8'
Room
Ceiling Type
Height
Great Room
Cathedral
0' 0''
Primary Pitch
8 on 12
Secondary Pitch
6 on 12
Framing Type
Stick
Total Heated Area
1,764 sq. ft.
1st Floor
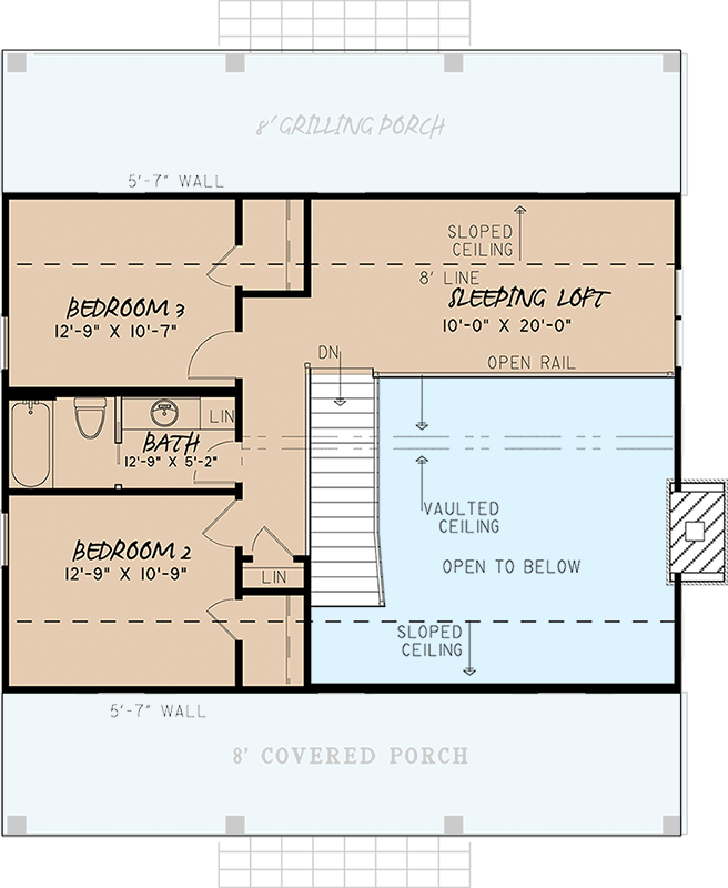
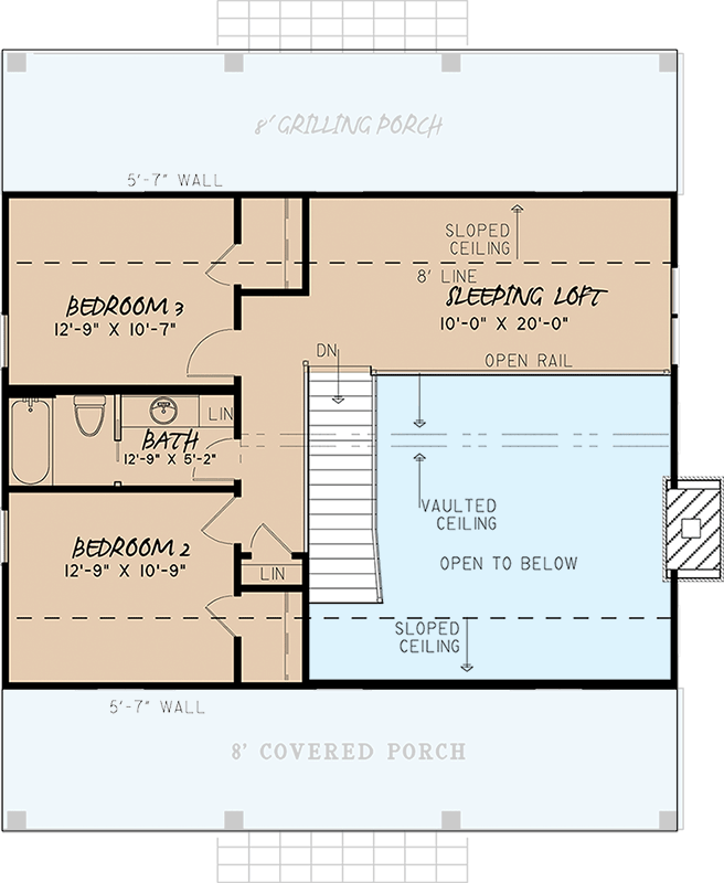
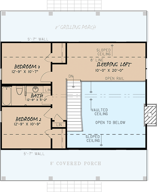
1,064 sq. ft.
2nd Floor
700 sq. ft.
Porch, Combined
608 sq. ft.
Bedrooms
3
Full bathrooms
2
Half bathrooms
1
Standard Foundations
Crawl, Slab
Exterior Walls
2x4
Optional Type(s)
2x6
Width
38' 0"
Depth
44' 0"
Max Ridge Height
26' 0"
First Floor
9'
Second Floor
8'
Room
Ceiling Type
Height
Great Room
Cathedral
0' 0''
Primary Pitch
8 on 12
Secondary Pitch
6 on 12
Framing Type
Stick