


Total Heated Area
1,240 sq. ft.
1st Floor
780 sq. ft.
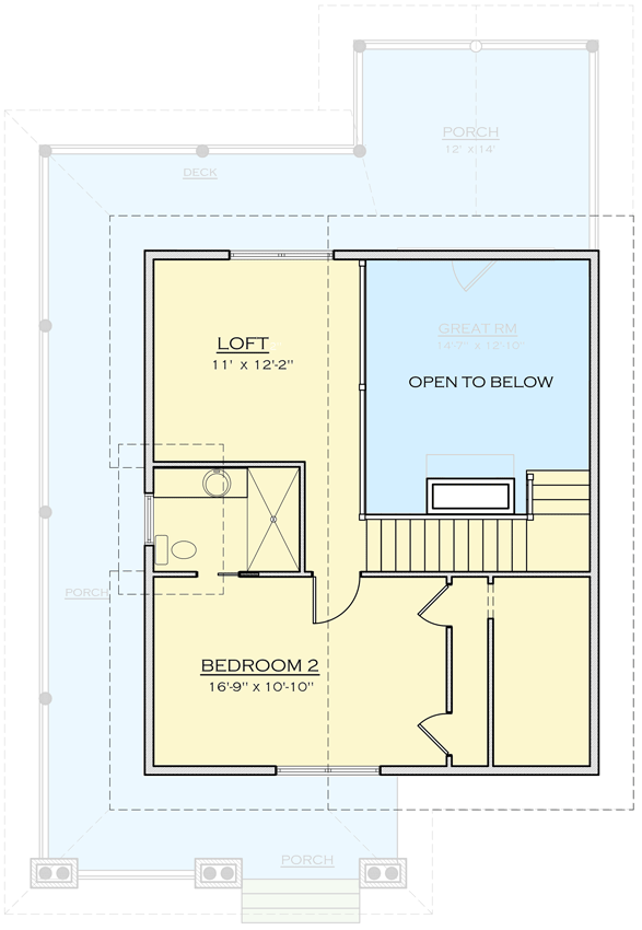
2nd Floor
460 sq. ft.
Bedrooms
2
Full bathrooms
2
Standard Foundations
Crawl
Exterior Walls
2x6
Width
32' 0"
Depth
48' 0"
Type
Detached
Area
624 sq. ft.
Count
2 Cars
First Floor
9'
Second Floor
8'
Framing Type
Stick
Total Heated Area
1,240 sq. ft.
1st Floor
780 sq. ft.
2nd Floor
460 sq. ft.
Bedrooms
2
Full bathrooms
2
Standard Foundations
Crawl
Exterior Walls
2x6
Width
32' 0"
Depth
48' 0"
Type
Detached
Area
624 sq. ft.
Count
2 Cars
First Floor
9'
Second Floor
8'
Framing Type
Stick