



Total Heated Area
2,000 sq. ft.
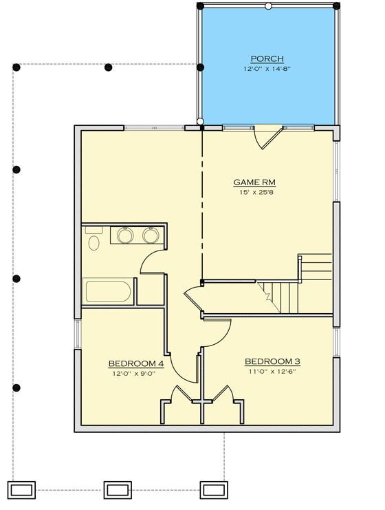
Lower Level
760 sq. ft.
1st Floor
780 sq. ft.
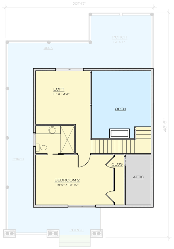
2nd Floor
460 sq. ft.
Bedrooms
4
Full bathrooms
3
Standard Foundations
Walkout
Exterior Walls
2x6
Width
32' 0"
Depth
48' 0"
Type
Detached
Area
624 sq. ft.
Count
2 Cars
First Floor
9'
Second Floor
8'
Framing Type
Stick
Total Heated Area
2,000 sq. ft.
Lower Level
760 sq. ft.
1st Floor
780 sq. ft.
2nd Floor
460 sq. ft.
Bedrooms
4
Full bathrooms
3
Standard Foundations
Walkout
Exterior Walls
2x6
Width
32' 0"
Depth
48' 0"
Type
Detached
Area
624 sq. ft.
Count
2 Cars
First Floor
9'
Second Floor
8'
Framing Type
Stick