



Total Heated Area
3,741 sq. ft.
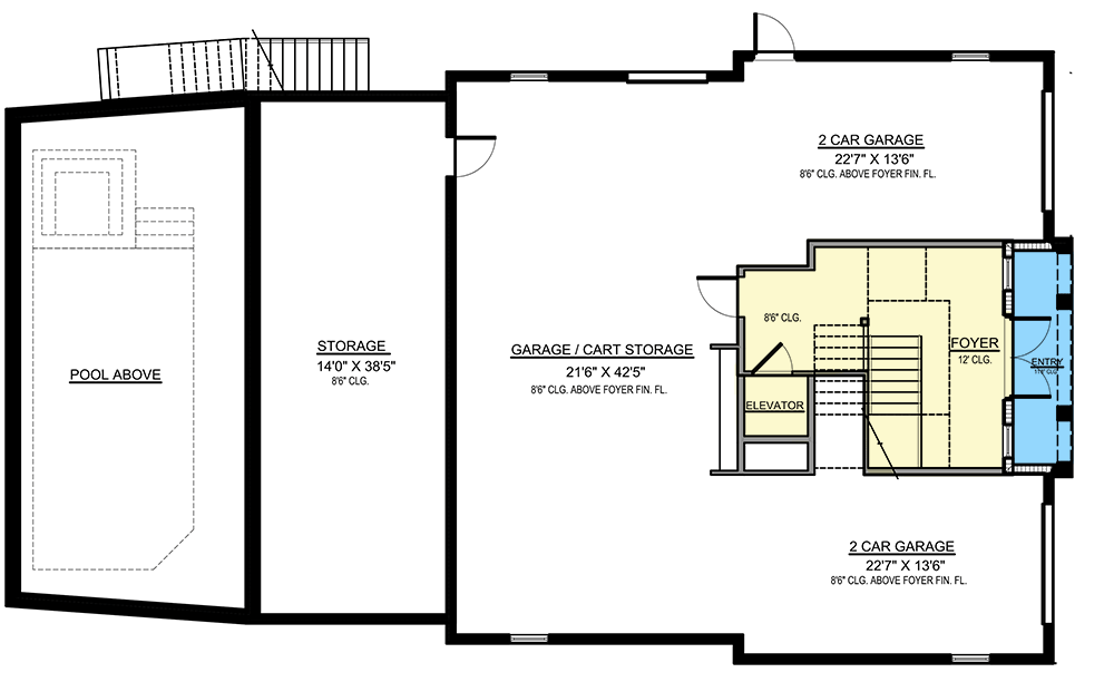
1st Floor
258 sq. ft.
2nd Floor
1,962 sq. ft.
3rd Floor
1,521 sq. ft.
Entry
72 sq. ft.
Balcony / Veranda
377 sq. ft.
Lanai
485 sq. ft.
Bedrooms
4 or 5
Full bathrooms
4
Half bathrooms
2
Standard Foundations
Slab
Exterior Walls
Block / CMU (main floor)
Optional Type(s)
2x6
Width
45' 8"
Depth
79' 7"
Max Ridge Height
38' 6"
Type
Attached, Drive Under
Area
1636 sq. ft.
Count
4 Cars
Entry Location
Front
Primary Pitch
4 on 12
Secondary Pitch
5 on 12
Framing Type
Truss
Total Heated Area
3,741 sq. ft.
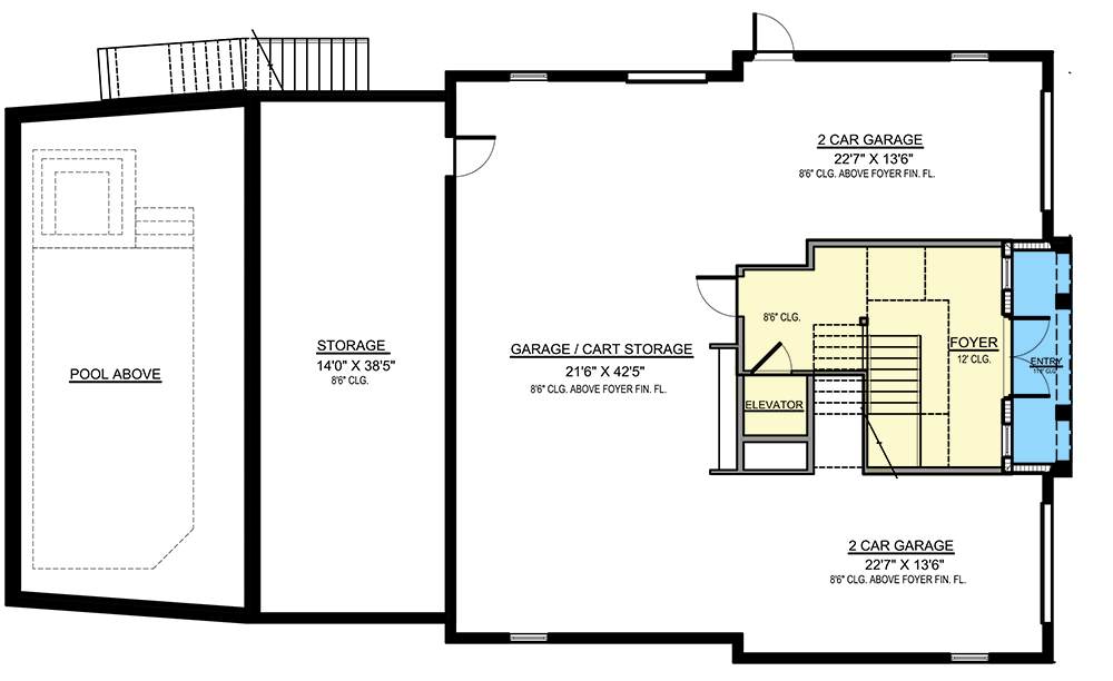
1st Floor
258 sq. ft.
2nd Floor
1,962 sq. ft.
3rd Floor
1,521 sq. ft.
Entry
72 sq. ft.
Balcony / Veranda
377 sq. ft.
Lanai
485 sq. ft.
Bedrooms
4 or 5
Full bathrooms
4
Half bathrooms
2
Standard Foundations
Slab
Exterior Walls
Block / CMU (main floor)
Optional Type(s)
2x6
Width
45' 8"
Depth
79' 7"
Max Ridge Height
38' 6"
Type
Attached, Drive Under
Area
1636 sq. ft.
Count
4 Cars
Entry Location
Front
Primary Pitch
4 on 12
Secondary Pitch
5 on 12
Framing Type
Truss