

Total Heated Area
1,999 sq. ft.
1st Floor
604 sq. ft.
2nd Floor
1,395 sq. ft.
Porch, Front
310 sq. ft.
Bedrooms
2
Full bathrooms
3
Standard Foundations
Slab
Exterior Walls
ICF
Width
55' 0"
Depth
31' 0"
Max Ridge Height
29' 6"
Type
Detached
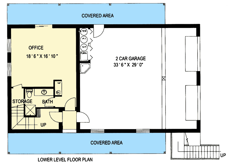
Area
1075 sq. ft.
Count
2 Cars
Entry Location
Front
Lower Level
9'
First Floor
9'
Primary Pitch
7 on 12
Secondary Pitch
N on N
Framing Type
Truss
Total Heated Area
1,999 sq. ft.
1st Floor
604 sq. ft.
2nd Floor
1,395 sq. ft.
Porch, Front
310 sq. ft.
Bedrooms
2
Full bathrooms
3
Standard Foundations
Slab
Exterior Walls
ICF
Width
55' 0"
Depth
31' 0"
Max Ridge Height
29' 6"
Type
Detached
Area
1075 sq. ft.
Count
2 Cars
Entry Location
Front
Lower Level
9'
First Floor
9'
Primary Pitch
7 on 12
Secondary Pitch
N on N
Framing Type
Truss