

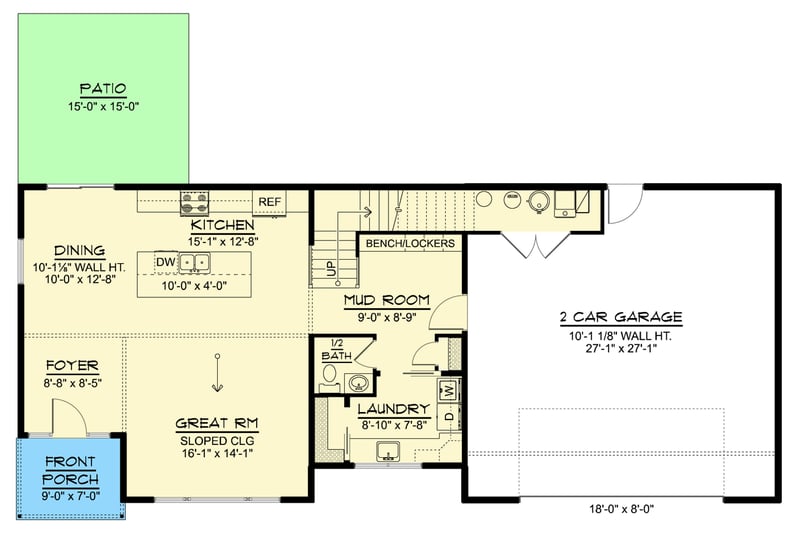
Total Heated Area
2,008 sq. ft.
1st Floor
1,013 sq. ft.
2nd Floor
995 sq. ft.
Porch, Front
63 sq. ft.
Porch, Rear
96 sq. ft.
Bedrooms
3
Full bathrooms
2
Half bathrooms
1
Standard Foundations
Slab
Exterior Walls
2x6
Width
67' 0"
Depth
29' 4"
Max Ridge Height
21' 7"
Type
Attached
Area
773 sq. ft.
Count
2 Cars
Entry Location
Front
First Floor
10'
Second Floor
9'
Primary Pitch
1/8 on 12
Framing Type
Stick
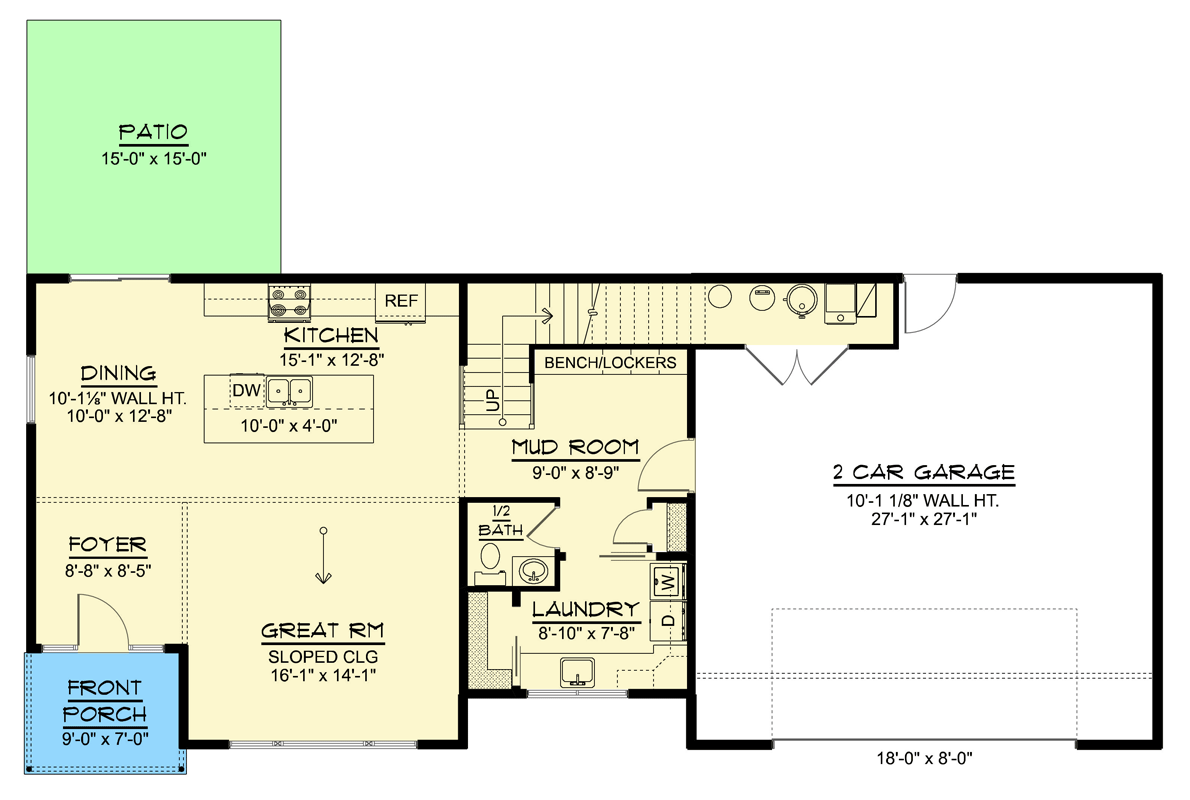
Total Heated Area
2,008 sq. ft.
1st Floor
1,013 sq. ft.
2nd Floor
995 sq. ft.
Porch, Front
63 sq. ft.
Porch, Rear
96 sq. ft.
Bedrooms
3
Full bathrooms
2
Half bathrooms
1
Standard Foundations
Slab
Exterior Walls
2x6
Width
67' 0"
Depth
29' 4"
Max Ridge Height
21' 7"
Type
Attached
Area
773 sq. ft.
Count
2 Cars
Entry Location
Front
First Floor
10'
Second Floor
9'
Primary Pitch
1/8 on 12
Framing Type
Stick