

Total Heated Area
3,004 sq. ft.
1st Floor
1,710 sq. ft.
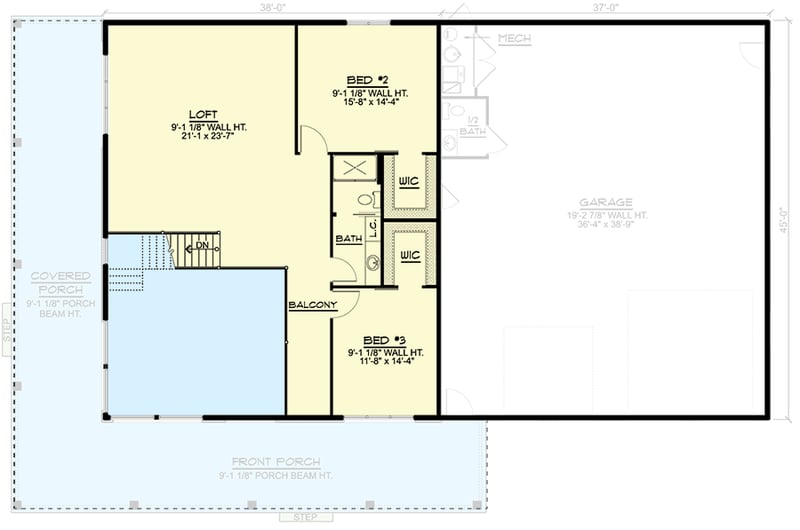
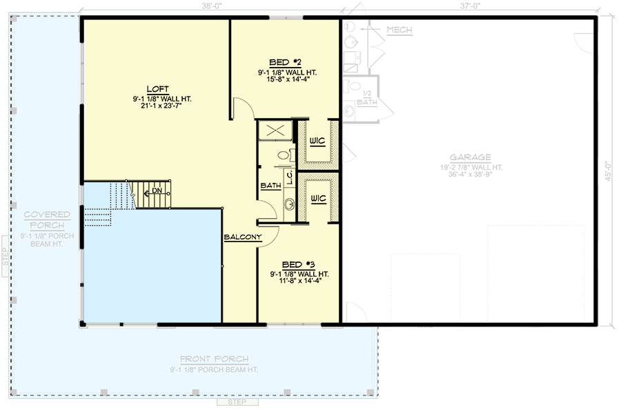
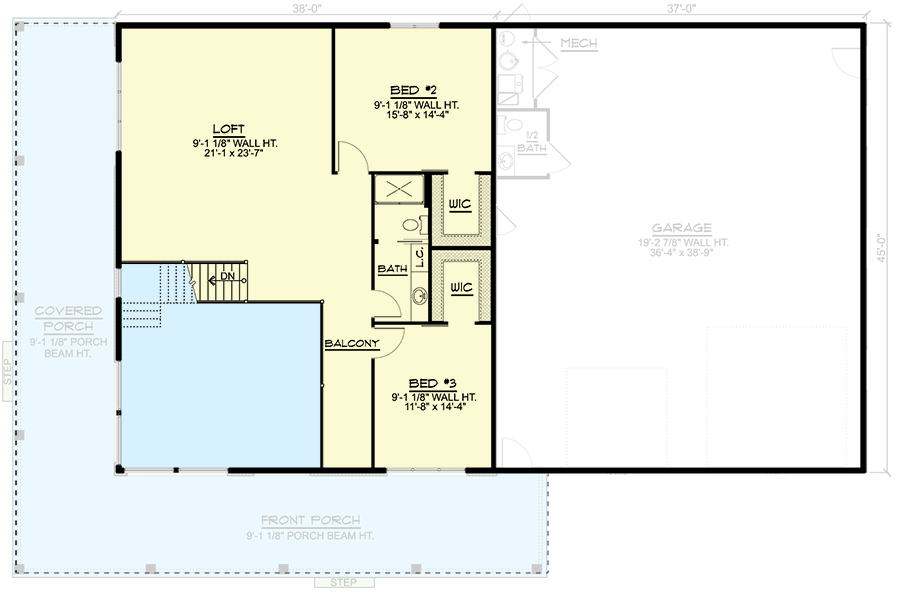
2nd Floor
1,294 sq. ft.
Porch, Combined
975 sq. ft.
Bedrooms
3
Full bathrooms
2
Half bathrooms
2
Standard Foundations
Crawl
Exterior Walls
2x6
Width
85' 0"
Depth
55' 0"
Max Ridge Height
27' 3"
Type
Attached, RV Garage
Area
1665 sq. ft.
Count
3 Cars
Entry Location
Front
First Floor
9'
Second Floor
9'
Primary Pitch
4 on 12
Framing Type
Truss
Total Heated Area
3,004 sq. ft.
1st Floor
1,710 sq. ft.
2nd Floor
1,294 sq. ft.
Porch, Combined
975 sq. ft.
Bedrooms
3
Full bathrooms
2
Half bathrooms
2
Standard Foundations
Crawl
Exterior Walls
2x6
Width
85' 0"
Depth
55' 0"
Max Ridge Height
27' 3"
Type
Attached, RV Garage
Area
1665 sq. ft.
Count
3 Cars
Entry Location
Front
First Floor
9'
Second Floor
9'
Primary Pitch
4 on 12
Framing Type
Truss