LogoLogo TaglineLogo Tagline
Loading...
Plan 65629BS

Contemporary Beach House Plan with Pool Concept

Heated S.F.
2,945
Beds
3
Baths
3.5+
Stories
2

Floor Plan

Plan 65629BS

Main Level
Main Level
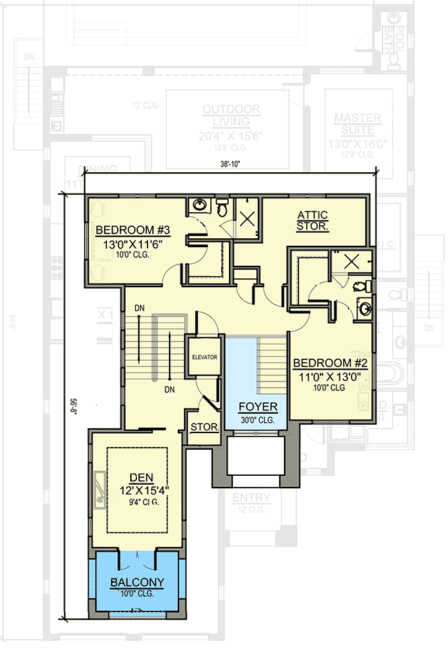
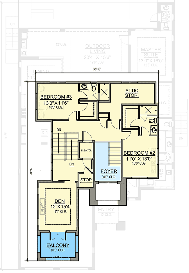
2nd Floor
2nd Floor
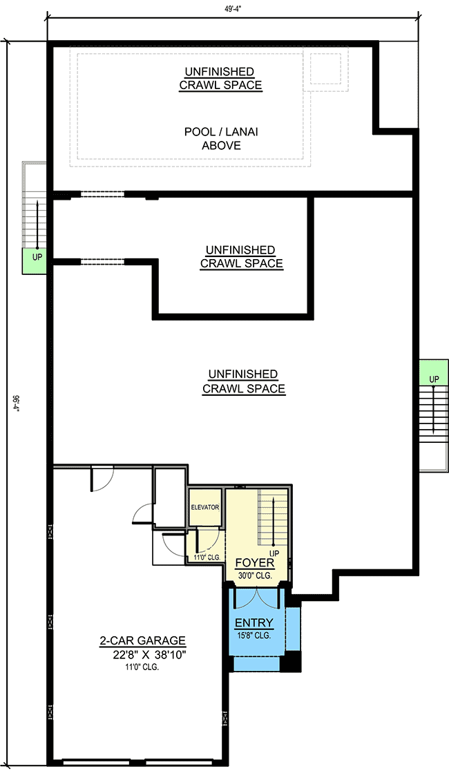
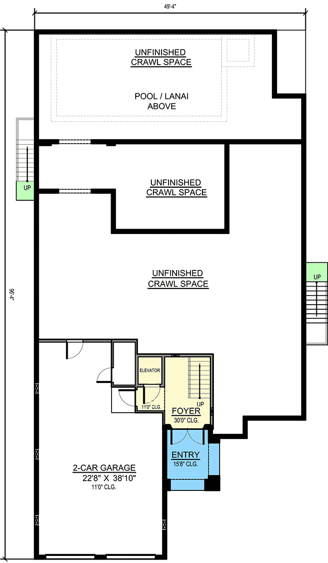
Ground Level
Ground Level

Plan 65629BS

M-F 9am-5pm EST |

1-203-761-8500

Main Level

Plan 65629BS: Contemporary Beach House Plan with Pool Concept - Floor Plan - Main Level - Coastal, Contemporary, European, Florida-Style, Mediterranean, Transitional

2nd Floor

Plan 65629BS: Contemporary Beach House Plan with Pool Concept - Floor Plan - 2nd Floor - Coastal, Contemporary, European, Florida-Style, Mediterranean, Transitional

Ground Level

Plan 65629BS: Contemporary Beach House Plan with Pool Concept - Floor Plan - Ground Level - Coastal, Contemporary, European, Florida-Style, Mediterranean, Transitional

Plan Details

  • Stucco and stone accents adorn the facade of this contemporary, beach house plan, which presents a seamless flow between the indoor and outdoor living spaces.
  • The ground level is where you'll find the double garage and foyer, with a staircase and elevator providing access to the upper levels.
  • The combined great room, kitchen, and dining areas offer a great space for family and friends to gather.
  • Retreat to the main-level's master suite for peace and quiet, and discover a 5-fixture bathroom and dual walk-in closets.
  • A den above the garage includes a forward-facing balcony, while bedroom suites 2 and 3 are a few steps further.
  • BUILDING RESTRICTION: Restrictions may apply if building in Lee and Collier Counties, Florida as well as Sarasota, Florida. Please contact us with your site address to confirm. 

What's Included

Elevations: - Drawn at 1/8″ to 1/4″ = 1’0″ Scale and Includes: 
  • Material Labels 
  • Floor-To-Floor Heights 
  • Roof Slope Indicators 

Floor Plans: - Drawn at 1/8″ to 1/4″ = 1’0″ Scale and Includes: 
  • Door and Window Sizes 
  • Completely Dimensioned Floor Plan 
  • Room Labels and Interior Room Sizes 

Electrical Layouts: 
  • Building Section Markers 
  • All Electrical Outlets, Fixtures and Switching

Foundation or Slab Plan: - Drawn at 1/8″ to 1/4″ = 1’0″ Scale and Includes: 
  • Floor and Deck Joist Sizes, Spacing and Direction 
  • Electrical Locations

Roof Design Plan: - Drawn to 1/8″ to 1/4″ = 1’0″ Scale and Includes: 
  • All Beam and Header Heights and Locations 
  • All Hips, Gables, Ridges and Valley 
  • Building Section Markers 

Building Sections: - Drawn to 1/8″ to 1/4″ = 1’0″ Scale and Includes:
  • Floor-To-Floor Heights 
  • Non-Typical Plate Heights Indicated 

Typical Wall Sections: - Drawn at 1/8″ to 1/2″ = 1’0″ Scale and Includes: 
  • All Labels Indicating Wall Construction 
  • Foundation Wall Thickness 
  • Insulation Type and Thickness

Miscellaneous Notes and Details: 
  • Miscellaneous General Notes 
  • Stairway Details (if applicable)

What's Not Included

  • Architectural or Engineering Stamp - handled locally if required 
  • Site Plan - handled locally when required 
  • Mechanical Drawings (location of heating and air equipment and duct work) - your subcontractors handle this 
  • Plumbing Drawings (drawings showing the actual plumbing pipe sizes and locations) - your subcontractors handle this 
  • Energy calculations - handled locally when required
IMPORTANT NOTE: Structural drawings, as well as heating and plumbing details, will not be included in your plan sets due to a variety of factors which include local codes, installation methods, personal preference, etc. Your building professional (contractor/builder/supplier) can, without difficulty, supply these details and specifications on your behalf.

Starting at

Loading...
Price Match Guarantee
What's included?

FORMAT & LICENSE

Choose an option

$0

Not sure what to choose?

Pointer link icon

FOUNDATION

Choose an option

+$0

OPTIONS

Choose Additional Options

+$0

Loading...

Modify this Plan

Receive a free modification quote within 3 business days.

Loading...

Start with a Cost Report

Calculate the cost to build & furnish your home.

Loading...
Loading...

Square Footage Breakdown

Total Heated Area

2,945 sq. ft.

Lower Level

165 sq. ft.

1st Floor

1,705 sq. ft.

2nd Floor

1,075 sq. ft.

Entry

105 sq. ft.

Balcony / Veranda

117 sq. ft.

Lanai

461 sq. ft.

Beds/Baths

Bedrooms

3

Full bathrooms

3

Half bathrooms

2

Foundation Type

Standard Foundations

Slab

Exterior Walls

Exterior Walls

Block / CMU (main floor)

Optional Type(s)

2x6

Dimensions

Width

49' 4"

Depth

84' 8"

Garage

Type

Attached

Area

873 sq. ft.

Entry Location

Front

Ceiling Heights

First Floor

12'

Second Floor

10'

Roof Details

Framing Type

Truss

Architectural Style

Coastal

Square Footage Breakdown

Total Heated Area

2,945 sq. ft.

Lower Level

165 sq. ft.

1st Floor

1,705 sq. ft.

2nd Floor

1,075 sq. ft.

Entry

105 sq. ft.

Balcony / Veranda

117 sq. ft.

Lanai

461 sq. ft.

Beds/Baths

Bedrooms

3

Full bathrooms

3

Half bathrooms

2

Foundation Type

Standard Foundations

Slab

Exterior Walls

Exterior Walls

Block / CMU (main floor)

Optional Type(s)

2x6

Dimensions

Width

49' 4"

Depth

84' 8"

Garage

Type

Attached

Area

873 sq. ft.

Entry Location

Front

Ceiling Heights

First Floor

12'

Second Floor

10'

Roof Details

Framing Type

Truss

* Please note that all sale prices and promotions featured on our website are subject to change without prior notice. While we strive to provide accurate and up-to-date information, occasional discrepancies may occur due to factors beyond our control. We encourage you to verify all details, including pricing and availability, before making any purchase. Exclusions or restrictions may apply to specific promotions. We reserve the right to modify or cancel any sale at our discretion. Thank you for your understanding and happy shopping!Let's go back to the top.