

Total Heated Area
3,498 sq. ft.
1st Floor
2,443 sq. ft.
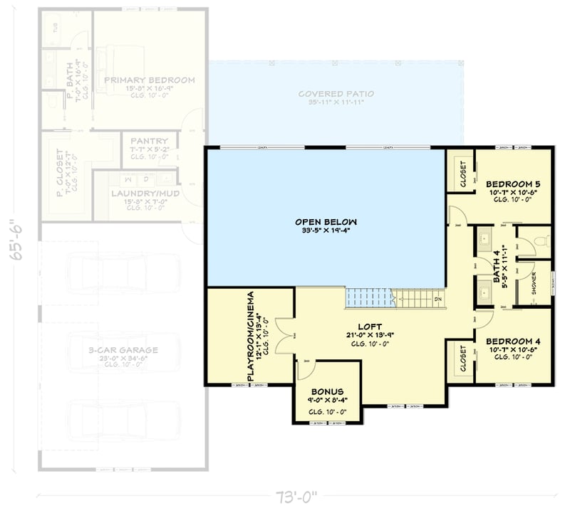
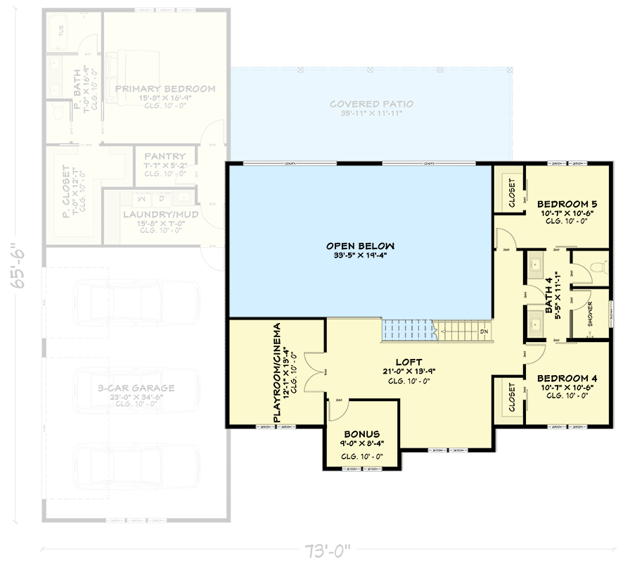
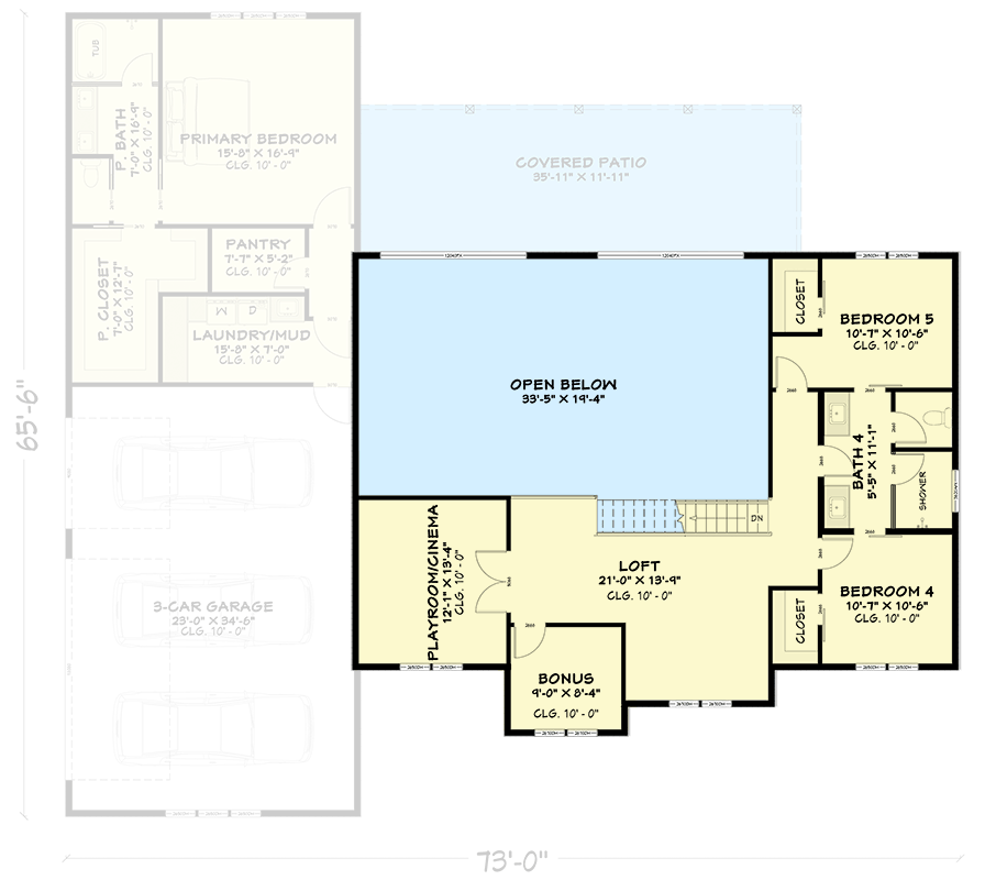
2nd Floor
1,055 sq. ft.
Porch, Front
45 sq. ft.
Covered Patio
428 sq. ft.
Bedrooms
5
Full bathrooms
4
Half bathrooms
1
Standard Foundations
Monolithic Slab
Exterior Walls
2x6
Width
73' 0"
Depth
65' 6"
Max Ridge Height
29' 3"
Type
Standard
Area
794 sq. ft.
Count
3 Cars
Entry Location
Side
First Floor
10'
Second Floor
10'
Primary Pitch
6 on 12
Framing Type
Total Heated Area
3,498 sq. ft.
1st Floor
2,443 sq. ft.
2nd Floor
1,055 sq. ft.
Porch, Front
45 sq. ft.
Covered Patio
428 sq. ft.
Bedrooms
5
Full bathrooms
4
Half bathrooms
1
Standard Foundations
Monolithic Slab
Exterior Walls
2x6
Width
73' 0"
Depth
65' 6"
Max Ridge Height
29' 3"
Type
Standard
Area
794 sq. ft.
Count
3 Cars
Entry Location
Side
First Floor
10'
Second Floor
10'
Primary Pitch
6 on 12
Framing Type