LogoLogo TaglineLogo Tagline
Loading...
Plan 270078AF

Contemporary Shingle Style Farmhouse Plan with 4 Upstairs Vaulted Bedrooms

Heated S.F.
3,763
Beds
4 - 5
Baths
3.5 - 4.5
Stories
2
Cars
2
Client Photos

Floor Plan

Plan 270078AF

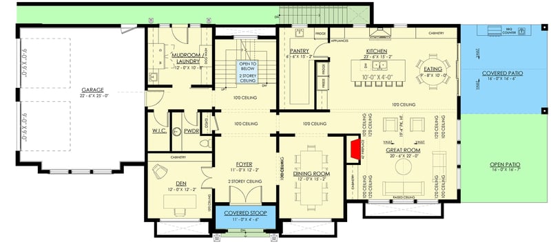
Main Level
Main Level
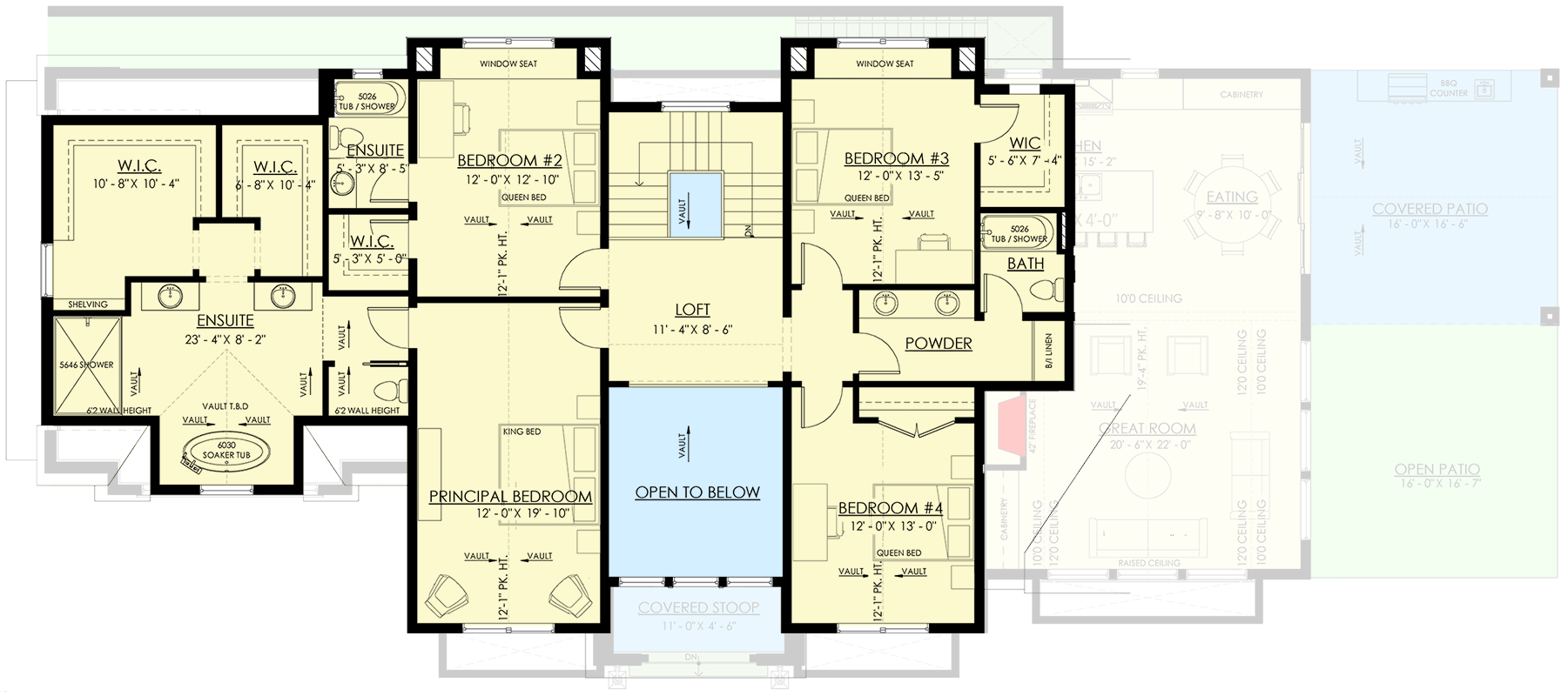
2nd Floor
2nd Floor
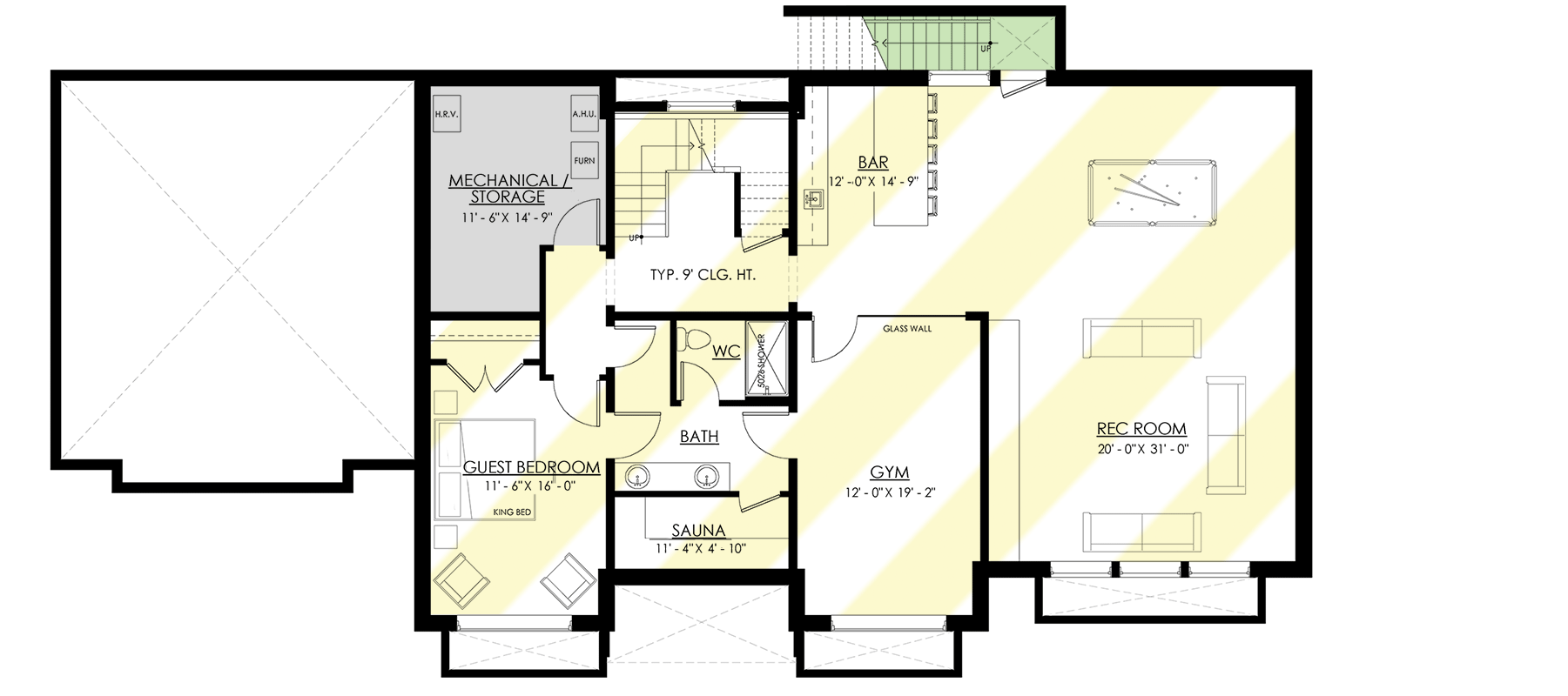
Optional Lower Level
Optional Lower Level

Plan 270078AF

M-F 9am-5pm EST |

1-203-761-8500

Main Level

Plan 270078AF: Contemporary Shingle Style Farmhouse Plan with 4 Upstairs Vaulted Bedrooms - Floor Plan - Main Level - Colonial, Farmhouse, Modern Farmhouse, Shingle, Traditional

2nd Floor

Plan 270078AF: Contemporary Shingle Style Farmhouse Plan with 4 Upstairs Vaulted Bedrooms - Floor Plan - 2nd Floor - Colonial, Farmhouse, Modern Farmhouse, Shingle, Traditional

Optional Lower Level

Plan 270078AF: Contemporary Shingle Style Farmhouse Plan with 4 Upstairs Vaulted Bedrooms - Floor Plan - Optional Lower Level - Colonial, Farmhouse, Modern Farmhouse, Shingle, Traditional

Plan Details

  • This Contemporary Shingle home plan, with a nod to the Farmhouse style, delivers 3,763 square feet of living space, as well as an optional lower level for future expansion.
  • The gourmet kitchen hosts a five-seat eating bar, loads of workspace, and a walk-in pantry that exceeds all expectations.
  • An expansive great room with a vaulted ceiling overlooks the partially-covered side patio, while a formal dining room and den offer more intimate spaces to unwind.
  • Each of the four bedrooms upstairs are crowned by vaulted ceilings, and the principal bedroom boasts a spa-like ensuite with dual closets.
  • Gain a sizable rec room with a wet bar, home gym, and guest suite, complete with a sauna, when you finish the basement. An exterior door in the basement makes it ideal for an older child or income property.
Build Gallery
See and hear from existing customers with real photos, videos, and reviews.
build gallery item - House Plan 270078AF Comes to Life in British Columbia

House Plan 270078AF Comes to Life in British Columbia

47

Photos

What's Included

  • Foundation Plan
  • Floor Plan(s) with Door and Window Opening Sizes
  • Roof Plan showing pitches, valleys, ridges
  • Exterior Elevations 
  • Building Section
  • Typical Construction Details/Sections

What's Not Included

  • Architectural or Engineering Stamp - handled locally if required
  • Site Plan - handled locally when required
  • Framing - layouts with beam sizes and locations
  • Electrical plan
  • Plumbing Details
  • Mechanical Drawings (location of heating and air equipment and duct work)
  • Energy calculations - handled locally when required
  • Renderings, photography, or marketing imagery

Starting at

Loading...
Price Match Guarantee
What's included?

FORMAT & LICENSE

Choose an option

$0

Not sure what to choose?

Pointer link icon

FOUNDATION

Choose an option

+$0

OPTIONS

Choose Additional Options

+$0

Loading...

Modify this Plan

Receive a free modification quote within 3 business days.

Loading...

Start with a Cost Report

Calculate the cost to build & furnish your home.

Loading...
Loading...

Square Footage Breakdown

Total Heated Area

3,763 sq. ft.

1st Floor

1,998 sq. ft.

2nd Floor

1,765 sq. ft.

Optional Lower Level

1,998 sq. ft.

Porch, Front

64 sq. ft.

Deck

266 sq. ft.

Beds/Baths

Bedrooms

4 or 5

Full bathrooms

3 or 4

Half bathrooms

1

Foundation Type

Standard Foundations

Basement

Exterior Walls

Exterior Walls

2x6

Dimensions

Width

98' 2"

Depth

42' 8"

Max Ridge Height

31' 6"

Garage

Type

Attached

Area

639 sq. ft.

Count

2 Cars

Entry Location

Side

Ceiling Heights

Lower Level

10'

First Floor

9'

Roof Details

Primary Pitch

8 on 12

Secondary Pitch

12 on 12

Framing Type

Truss

Square Footage Breakdown

Total Heated Area

3,763 sq. ft.

1st Floor

1,998 sq. ft.

2nd Floor

1,765 sq. ft.

Optional Lower Level

1,998 sq. ft.

Porch, Front

64 sq. ft.

Deck

266 sq. ft.

Beds/Baths

Bedrooms

4 or 5

Full bathrooms

3 or 4

Half bathrooms

1

Foundation Type

Standard Foundations

Basement

Exterior Walls

Exterior Walls

2x6

Dimensions

Width

98' 2"

Depth

42' 8"

Max Ridge Height

31' 6"

Garage

Type

Attached

Area

639 sq. ft.

Count

2 Cars

Entry Location

Side

Ceiling Heights

Lower Level

10'

First Floor

9'

Roof Details

Primary Pitch

8 on 12

Secondary Pitch

12 on 12

Framing Type

Truss

* Please note that all sale prices and promotions featured on our website are subject to change without prior notice. While we strive to provide accurate and up-to-date information, occasional discrepancies may occur due to factors beyond our control. We encourage you to verify all details, including pricing and availability, before making any purchase. Exclusions or restrictions may apply to specific promotions. We reserve the right to modify or cancel any sale at our discretion. Thank you for your understanding and happy shopping!Let's go back to the top.