
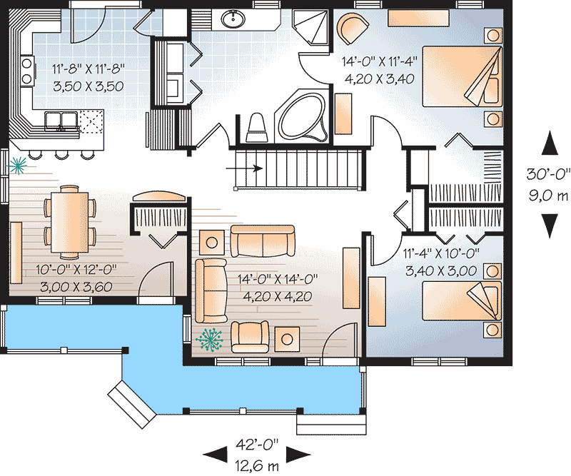
Total Heated Area
1,185 sq. ft.
1st Floor
1,185 sq. ft.
Basement Unfinished
1,185 sq. ft.
Bedrooms
2
Full bathrooms
1
Standard Foundations
Basement
Exterior Walls
2x6
Width
42' 0"
Depth
30' 0"
Max Ridge Height
20' 4"
First Floor
8'
Framing Type
Truss
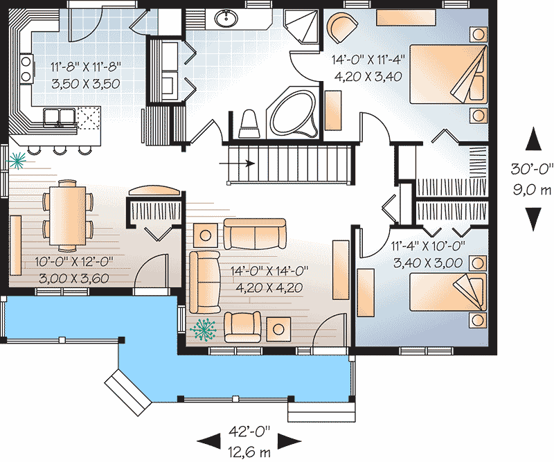
Total Heated Area
1,185 sq. ft.
1st Floor
1,185 sq. ft.
Basement Unfinished
1,185 sq. ft.
Bedrooms
2
Full bathrooms
1
Standard Foundations
Basement
Exterior Walls
2x6
Width
42' 0"
Depth
30' 0"
Max Ridge Height
20' 4"
First Floor
8'
Framing Type
Truss