Exclusive

Total Heated Area
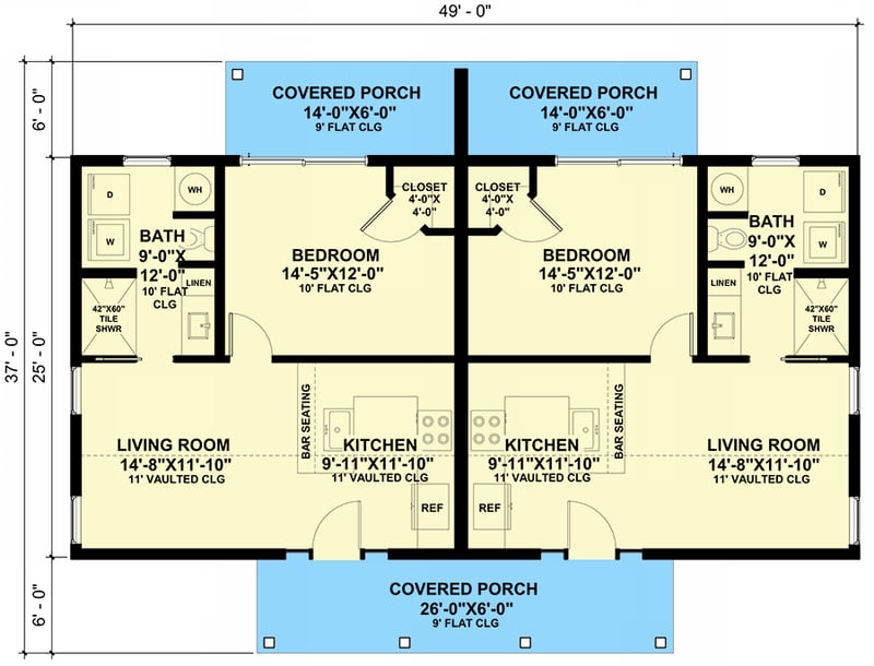
1,224 sq. ft.
1st Floor
1,224 sq. ft.
Porch, Front
312 sq. ft.
Porch, Rear
168 sq. ft.
Bedrooms
2
Full bathrooms
2
Standard Foundations
Monolithic Slab, Slab
Exterior Walls
2x6
Width
49' 0"
Depth
37' 0"
Max Ridge Height
17' 2"
First Floor
10'
Room
Ceiling Type
Height
Living Room
Vaulted
11' 0''
Kitchen
Vaulted
11' 0''
Front Porch
Flat
9' 0''
Rear Porch
Flat
9' 0''
Primary Pitch
6 on 12
Secondary Pitch
2.5 on 12
Framing Type
Truss
Total Heated Area
1,224 sq. ft.
1st Floor
1,224 sq. ft.
Porch, Front
312 sq. ft.
Porch, Rear
168 sq. ft.
Bedrooms
2
Full bathrooms
2
Standard Foundations
Monolithic Slab, Slab
Exterior Walls
2x6
Width
49' 0"
Depth
37' 0"
Max Ridge Height
17' 2"
First Floor
10'
Room
Ceiling Type
Height
Living Room
Vaulted
11' 0''
Kitchen
Vaulted
11' 0''
Front Porch
Flat
9' 0''
Rear Porch
Flat
9' 0''
Primary Pitch
6 on 12
Secondary Pitch
2.5 on 12
Framing Type
Truss