

Total Heated Area
2,825 sq. ft.
1st Floor
1,300 sq. ft.
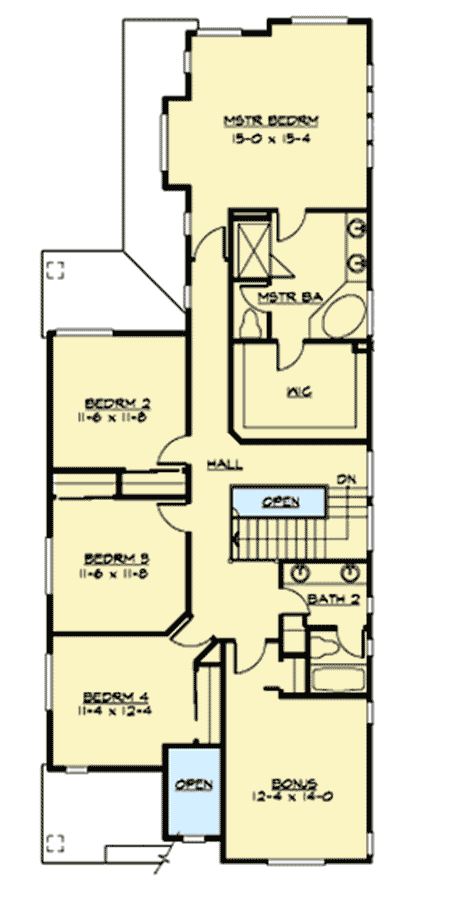
2nd Floor
1,525 sq. ft.
Bedrooms
4
Full bathrooms
2
Half bathrooms
1
Standard Foundations
Crawl
Exterior Walls
2x6
Width
28' 0"
Depth
71' 0"
Max Ridge Height
27' 6"
Type
Attached
Area
400 sq. ft.
Count
2 Cars
Entry Location
Rear
First Floor
9'
Second Floor
8'
Primary Pitch
12 on 12
Secondary Pitch
6 on 12
Framing Type
Truss
Total Heated Area
2,825 sq. ft.
1st Floor
1,300 sq. ft.
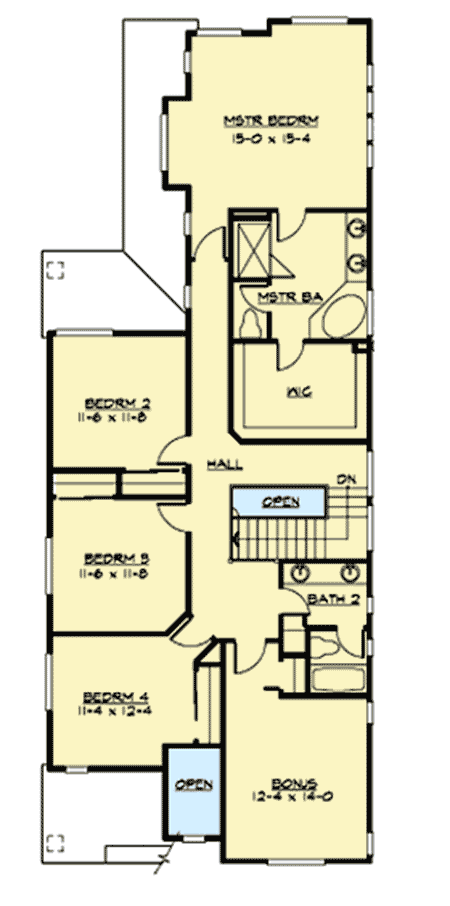
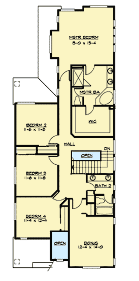
2nd Floor
1,525 sq. ft.
Bedrooms
4
Full bathrooms
2
Half bathrooms
1
Standard Foundations
Crawl
Exterior Walls
2x6
Width
28' 0"
Depth
71' 0"
Max Ridge Height
27' 6"
Type
Attached
Area
400 sq. ft.
Count
2 Cars
Entry Location
Rear
First Floor
9'
Second Floor
8'
Primary Pitch
12 on 12
Secondary Pitch
6 on 12
Framing Type
Truss