

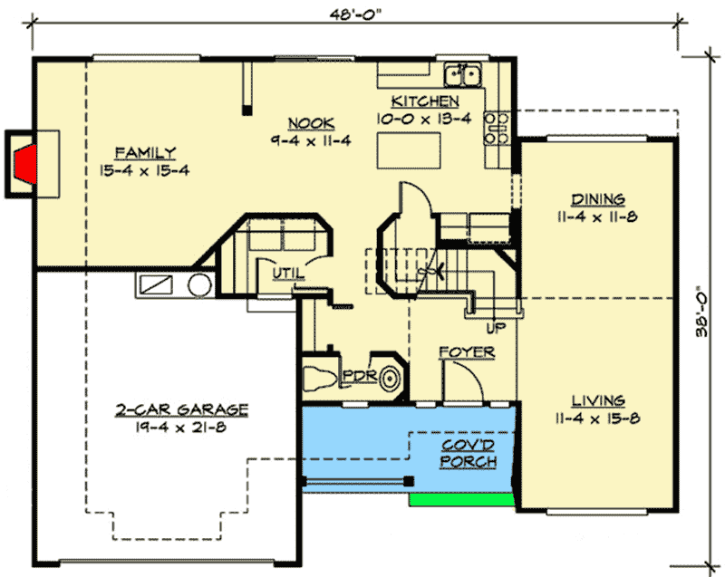
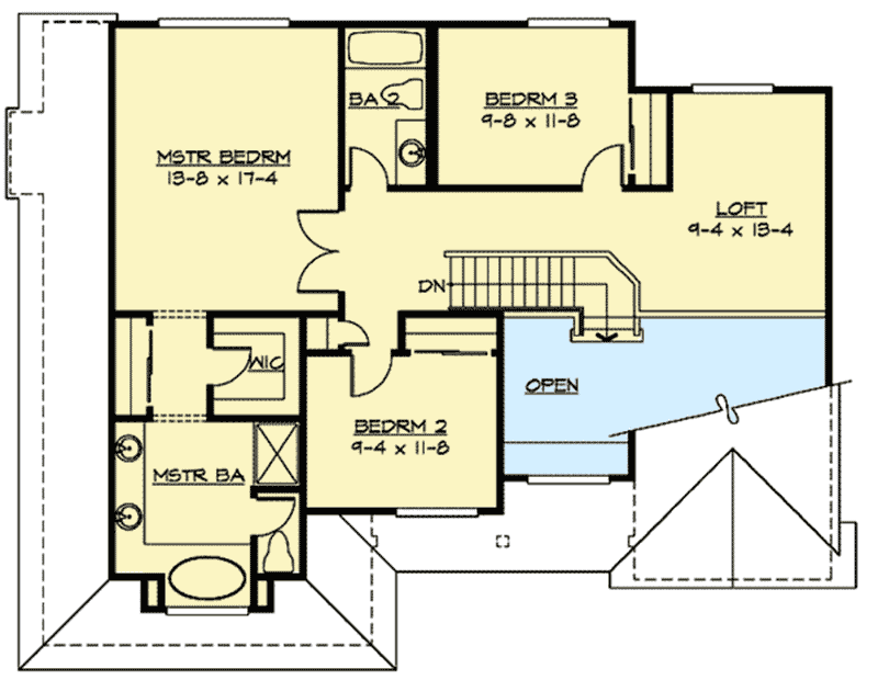
Total Heated Area
2,130 sq. ft.
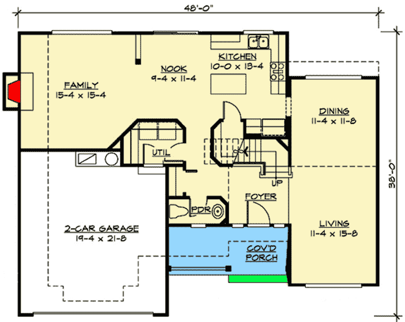
1st Floor
1,085 sq. ft.
2nd Floor
1,045 sq. ft.
Porch, Front
96 sq. ft.
Bedrooms
3
Full bathrooms
2
Half bathrooms
1
Standard Foundations
Crawl
Exterior Walls
2x6
Width
48' 0"
Depth
38' 0"
Max Ridge Height
25' 6"
Type
Attached
Area
400 sq. ft.
Count
2 Cars
Entry Location
Front
First Floor
8'
Second Floor
8'
Primary Pitch
7 on 12
Framing Type
Stick and Truss
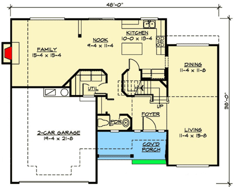
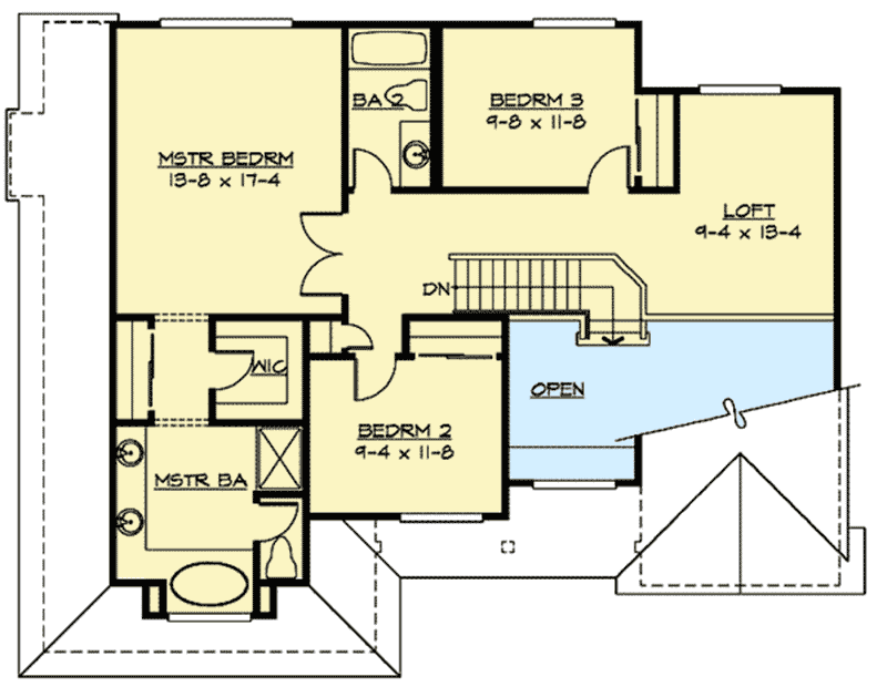
Total Heated Area
2,130 sq. ft.
1st Floor
1,085 sq. ft.
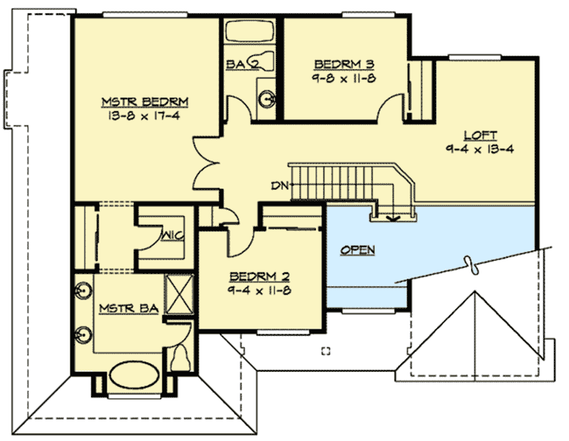
2nd Floor
1,045 sq. ft.
Porch, Front
96 sq. ft.
Bedrooms
3
Full bathrooms
2
Half bathrooms
1
Standard Foundations
Crawl
Exterior Walls
2x6
Width
48' 0"
Depth
38' 0"
Max Ridge Height
25' 6"
Type
Attached
Area
400 sq. ft.
Count
2 Cars
Entry Location
Front
First Floor
8'
Second Floor
8'
Primary Pitch
7 on 12
Framing Type
Stick and Truss