

Total Heated Area
3,428 sq. ft.
1st Floor
3,027 sq. ft.
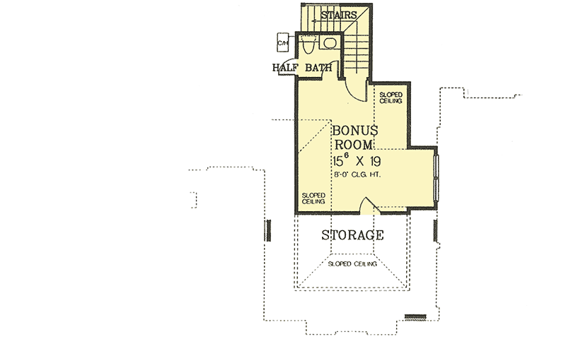
2nd Floor
401 sq. ft.
Entry
42 sq. ft.
Bedrooms
4
Full bathrooms
3
Half bathrooms
2
Standard Foundations
Slab
Exterior Walls
2x4
Width
78' 0"
Depth
75' 7"
Max Ridge Height
29' 0"
Type
Attached
Area
730 sq. ft.
Count
3 Cars
Entry Location
Side
First Floor
9'
Second Floor
8'
Primary Pitch
10 on 12
Framing Type
Stick
Total Heated Area
3,428 sq. ft.
1st Floor
3,027 sq. ft.
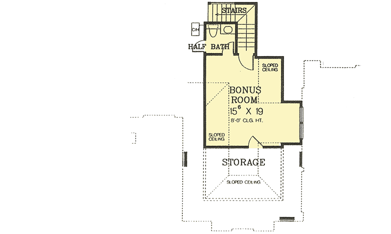
2nd Floor
401 sq. ft.
Entry
42 sq. ft.
Bedrooms
4
Full bathrooms
3
Half bathrooms
2
Standard Foundations
Slab
Exterior Walls
2x4
Width
78' 0"
Depth
75' 7"
Max Ridge Height
29' 0"
Type
Attached
Area
730 sq. ft.
Count
3 Cars
Entry Location
Side
First Floor
9'
Second Floor
8'
Primary Pitch
10 on 12
Framing Type
Stick