LogoLogo TaglineLogo Tagline
Loading...
Plan 90131PD

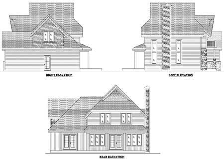
Flexible 2-Level Escape

Heated S.F.
1,888
Beds
4
Baths
2
Stories
2
Cars
1

Floor Plan

Plan 90131PD

Main Level
Main Level
2nd Floor
2nd Floor

Plan 90131PD

M-F 9am-5pm EST |

1-203-761-8500

Main Level

Plan 90131PD: Flexible 2-Level Escape - Floor Plan - Main Level - Craftsman, Mountain, Vacation

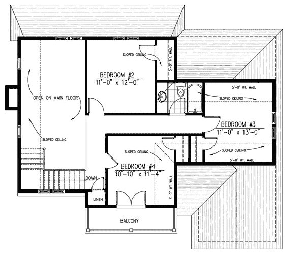
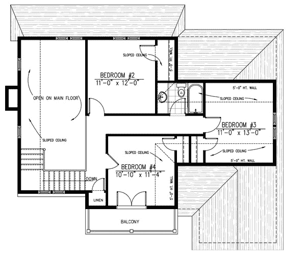
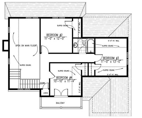
2nd Floor

Plan 90131PD: Flexible 2-Level Escape - Floor Plan - 2nd Floor - Craftsman, Mountain, Vacation

Plan Details

  • This flexible 2-level escape will make a great vacation home or a year-round residence. It comes with an unfinished basement as well as two versions without the garage and main floor master.
  • A covered porch shelters the front entry. Step inside and enjoy the open floor plan. An optional fireplace will add some flair to the vaulted living room. Double doors lead to the partially covered deck that runs the width of the house plan.
  • Island seating and a walk-in pantry are nice touches in the kitchen.
  • The master suite is on the main level and has access to the back deck.
  • Three bedrooms are on the second floor. Bedroom 4 enjoys its own private deck.
  • Related Plans: Remove the garage and get a second floor master with these house plans - 90133PD (finished walkout basement) and 90135PD (unfinished basement).

What's Included

Please note this plan is designed to the National Building Code of Canada.  
  • Elevations
  • Lower level plan -- including floor above structure, concrete level and thickness, electrical layout
  • Main floor plan w/ structure for the roof above, electrical layout
  • Building section
  • Construction details
  • Suggested lighting plan

What's Not Included

  • Architectural or Engineering Stamp - handled locally if required
  • Site Plan - handled locally when required
  • Mechanical Drawings (location of heating and air equipment and duct work) - your subcontractors handle this
  • Plumbing Drawings (drawings showing the actual plumbing pipe sizes and locations) - your subcontractors handle this
  • Framing - layouts with beam sizes and locations
  • Energy calculations - handled locally when required

Starting at

Loading...
Price Match Guarantee
What's included?

FORMAT & LICENSE

Choose an option

$0

Not sure what to choose?

Pointer link icon

FOUNDATION

Choose an option

+$0

OPTIONS

Choose Additional Options

+$0

Loading...

Modify this Plan

Receive a free modification quote within 3 business days.

Loading...

Start with a Cost Report

Calculate the cost to build & furnish your home.

Loading...
Loading...

Square Footage Breakdown

Total Heated Area

1,888 sq. ft.

1st Floor

963 sq. ft.

2nd Floor

925 sq. ft.

Basement Unfinished

963 sq. ft.

Beds/Baths

Bedrooms

4

Full bathrooms

2

Foundation Type

Standard Foundations

Basement

Exterior Walls

Exterior Walls

2x6

Dimensions

Width

42' 0"

Depth

34' 0"

Max Ridge Height

30' 4"

Garage

Type

Attached

Area

261 sq. ft.

Count

1 Cars

Entry Location

Front

Ceiling Heights

First Floor

8'

Second Floor

8'

Roof Details

Primary Pitch

12 on 12

Secondary Pitch

12 on 12

Framing Type

Truss

Architectural Style

Craftsman

Square Footage Breakdown

Total Heated Area

1,888 sq. ft.

1st Floor

963 sq. ft.

2nd Floor

925 sq. ft.

Basement Unfinished

963 sq. ft.

Beds/Baths

Bedrooms

4

Full bathrooms

2

Foundation Type

Standard Foundations

Basement

Exterior Walls

Exterior Walls

2x6

Dimensions

Width

42' 0"

Depth

34' 0"

Max Ridge Height

30' 4"

Garage

Type

Attached

Area

261 sq. ft.

Count

1 Cars

Entry Location

Front

Ceiling Heights

First Floor

8'

Second Floor

8'

Roof Details

Primary Pitch

12 on 12

Secondary Pitch

12 on 12

Framing Type

Truss

Architectural Style

* Please note that all sale prices and promotions featured on our website are subject to change without prior notice. While we strive to provide accurate and up-to-date information, occasional discrepancies may occur due to factors beyond our control. We encourage you to verify all details, including pricing and availability, before making any purchase. Exclusions or restrictions may apply to specific promotions. We reserve the right to modify or cancel any sale at our discretion. Thank you for your understanding and happy shopping!Let's go back to the top.