

Total Heated Area
417 sq. ft.
2nd Floor
417 sq. ft.
Storage
417 sq. ft.
Bedrooms
0
Standard Foundations
Slab
Exterior Walls
2x4
Optional Type(s)
2x6
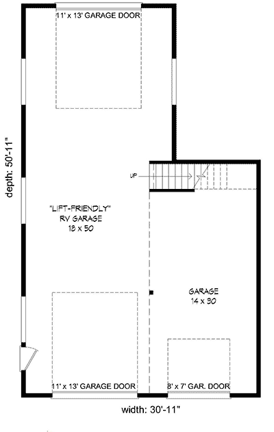
Width
30' 11"
Depth
50' 11"
Max Ridge Height
23' 6"
Type
RV Garage, Detached
Area
1354 sq. ft.
Count
2 or 3 Cars
Entry Location
Front, Rear
First Floor
15'
Second Floor
8'
Primary Pitch
6 on 12
Total Heated Area
417 sq. ft.
2nd Floor
417 sq. ft.
Storage
417 sq. ft.
Bedrooms
0
Standard Foundations
Slab
Exterior Walls
2x4
Optional Type(s)
2x6
Width
30' 11"
Depth
50' 11"
Max Ridge Height
23' 6"
Type
RV Garage, Detached
Area
1354 sq. ft.
Count
2 or 3 Cars
Entry Location
Front, Rear
First Floor
15'
Second Floor
8'
Primary Pitch
6 on 12