



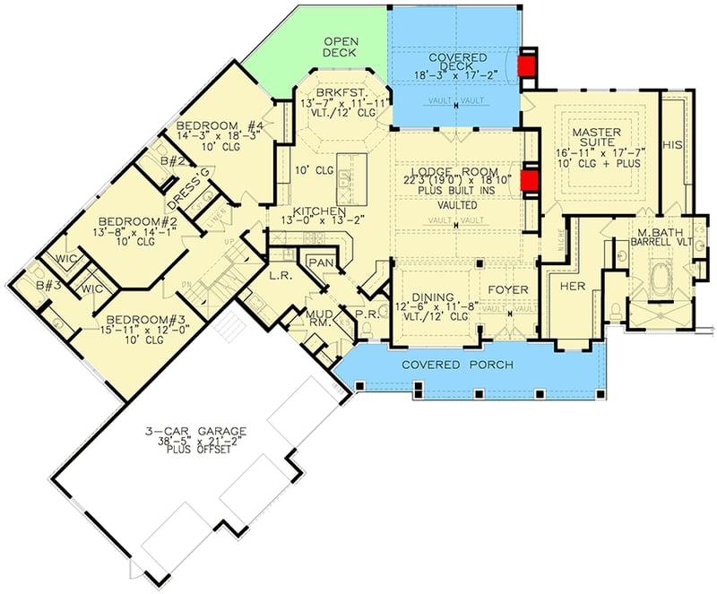
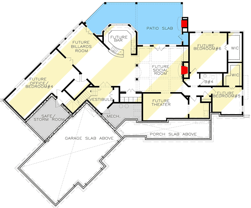
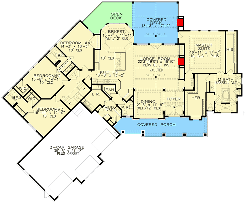
Total Heated Area
3,128 sq. ft.
1st Floor
3,128 sq. ft.
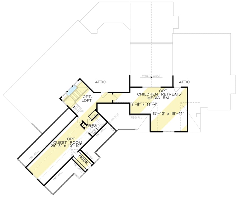
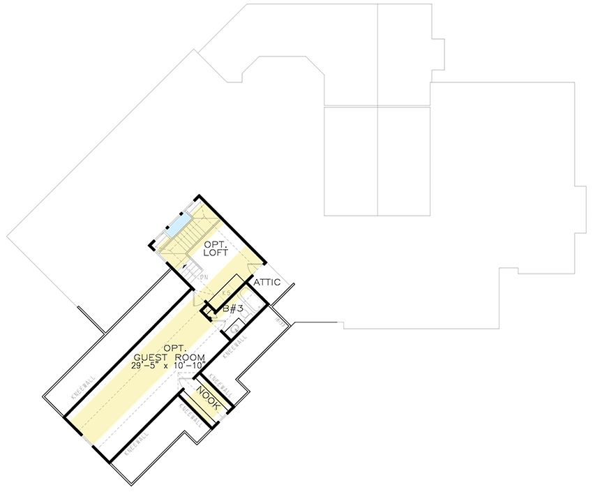
Bonus
538 sq. ft.
Bedrooms
4 or 5
Full bathrooms
3 or 4
Half bathrooms
1
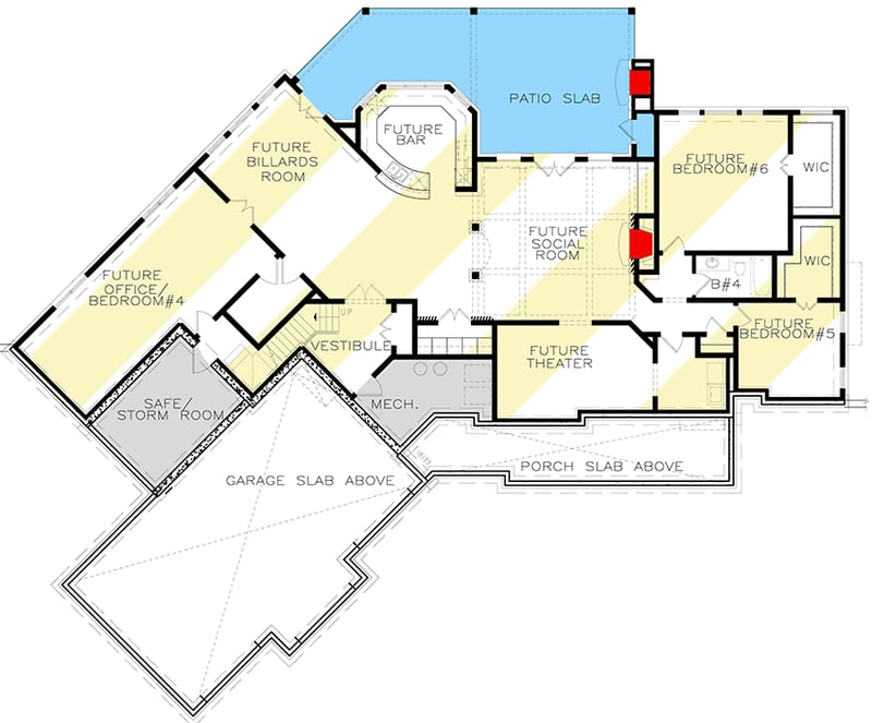
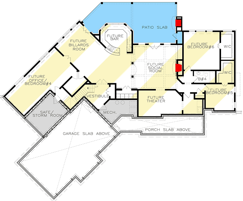
Standard Foundations
Walkout
Exterior Walls
2x6
Width
100' 11"
Depth
84' 0"
Max Ridge Height
31' 4"
Type
Attached
Area
868 sq. ft.
Count
3 Cars
Entry Location
Courtyard
First Floor
10'
Second Floor
9'
Total Heated Area
3,128 sq. ft.
1st Floor
3,128 sq. ft.
Bonus
538 sq. ft.
Bedrooms
4 or 5
Full bathrooms
3 or 4
Half bathrooms
1
Standard Foundations
Walkout
Exterior Walls
2x6
Width
100' 11"
Depth
84' 0"
Max Ridge Height
31' 4"
Type
Attached
Area
868 sq. ft.
Count
3 Cars
Entry Location
Courtyard
First Floor
10'
Second Floor
9'