

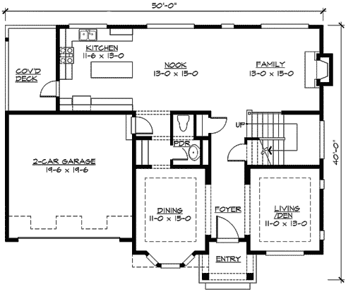
Total Heated Area
2,940 sq. ft.
1st Floor
1,240 sq. ft.
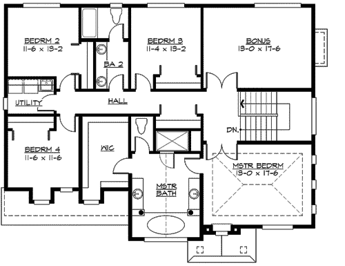
2nd Floor
1,700 sq. ft.
Bedrooms
4
Full bathrooms
2
Half bathrooms
1
Standard Foundations
Crawl
Exterior Walls
2x6
Width
50' 0"
Depth
40' 0"
Max Ridge Height
28' 6"
Type
Attached
Area
410 sq. ft.
Count
2 Cars
Entry Location
Front
First Floor
9'
Second Floor
9'
Primary Pitch
8 on 12
Framing Type
Truss
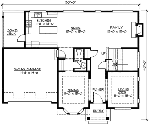
Total Heated Area
2,940 sq. ft.
1st Floor
1,240 sq. ft.
2nd Floor
1,700 sq. ft.
Bedrooms
4
Full bathrooms
2
Half bathrooms
1
Standard Foundations
Crawl
Exterior Walls
2x6
Width
50' 0"
Depth
40' 0"
Max Ridge Height
28' 6"
Type
Attached
Area
410 sq. ft.
Count
2 Cars
Entry Location
Front
First Floor
9'
Second Floor
9'
Primary Pitch
8 on 12
Framing Type
Truss