


We also include a list of building specifications, and notes for each page, with any important info the builder may need.
Total Heated Area
4,591 sq. ft.
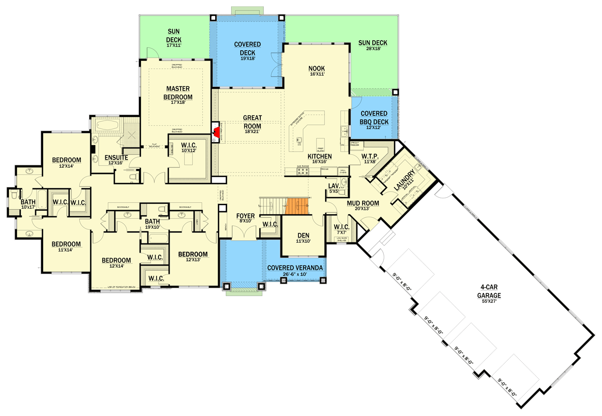
1st Floor
4,100 sq. ft.
2nd Floor
491 sq. ft.
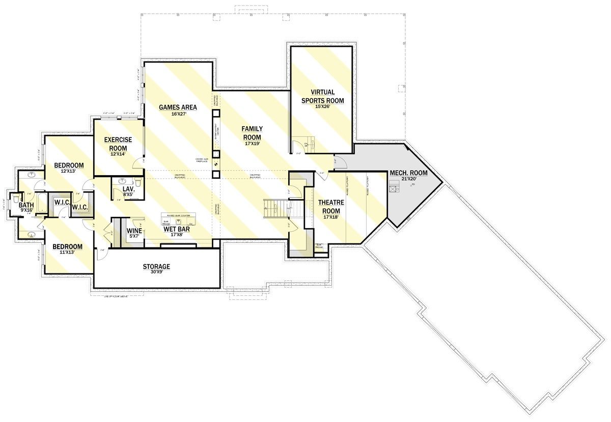
Optional Lower Level
3,145 sq. ft.
Bedrooms
5, 6, or 7
Full bathrooms
2 or 3
Half bathrooms
1
Standard Foundations
Basement
Exterior Walls
2x6
Width
146' 0"
Depth
91' 0"
Max Ridge Height
31' 7"
Type
Attached
Area
1529 sq. ft.
Count
4 Cars
Entry Location
Front, Courtyard
Lower Level
9'
First Floor
10'
Second Floor
8'
Room
Ceiling Type
Height
Great Room
14' 0''
Master Bedroom
Tray
10' 0''
Primary Pitch
9 on 12
Framing Type
Truss
Total Heated Area
4,591 sq. ft.
1st Floor
4,100 sq. ft.
2nd Floor
491 sq. ft.
Optional Lower Level
3,145 sq. ft.
Bedrooms
5, 6, or 7
Full bathrooms
2 or 3
Half bathrooms
1
Standard Foundations
Basement
Exterior Walls
2x6
Width
146' 0"
Depth
91' 0"
Max Ridge Height
31' 7"
Type
Attached
Area
1529 sq. ft.
Count
4 Cars
Entry Location
Front, Courtyard
Lower Level
9'
First Floor
10'
Second Floor
8'
Room
Ceiling Type
Height
Great Room
14' 0''
Master Bedroom
Tray
10' 0''
Primary Pitch
9 on 12
Framing Type
Truss