


We also include a list of building specifications, and notes for each page, with any important info the builder may need.
Total Heated Area
6,983 sq. ft.
1st Floor
3,228 sq. ft.
2nd Floor
3,755 sq. ft.
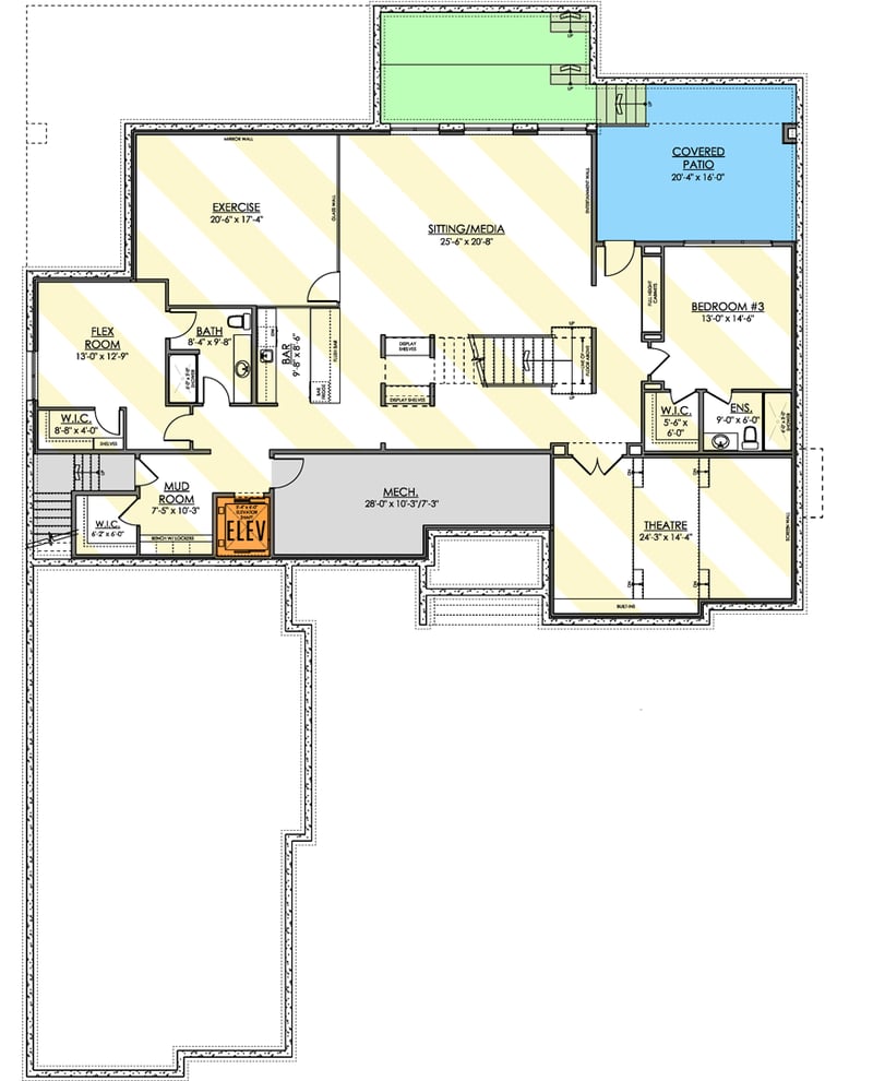
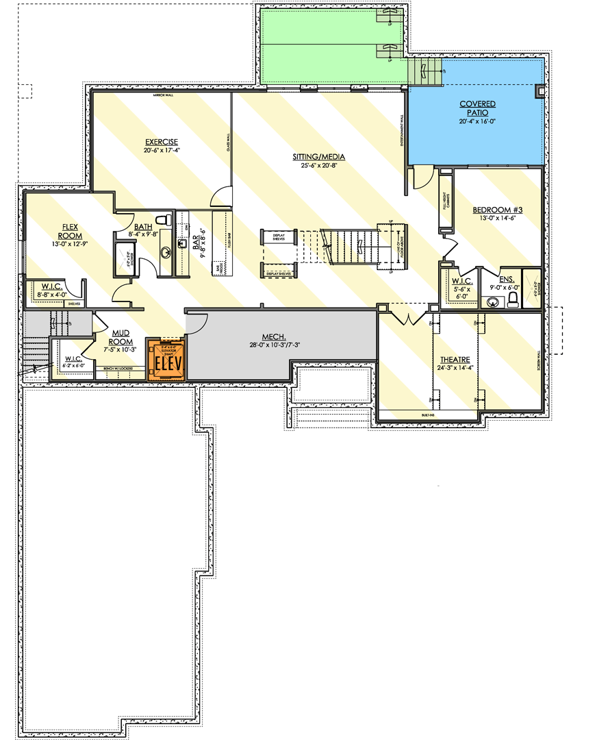
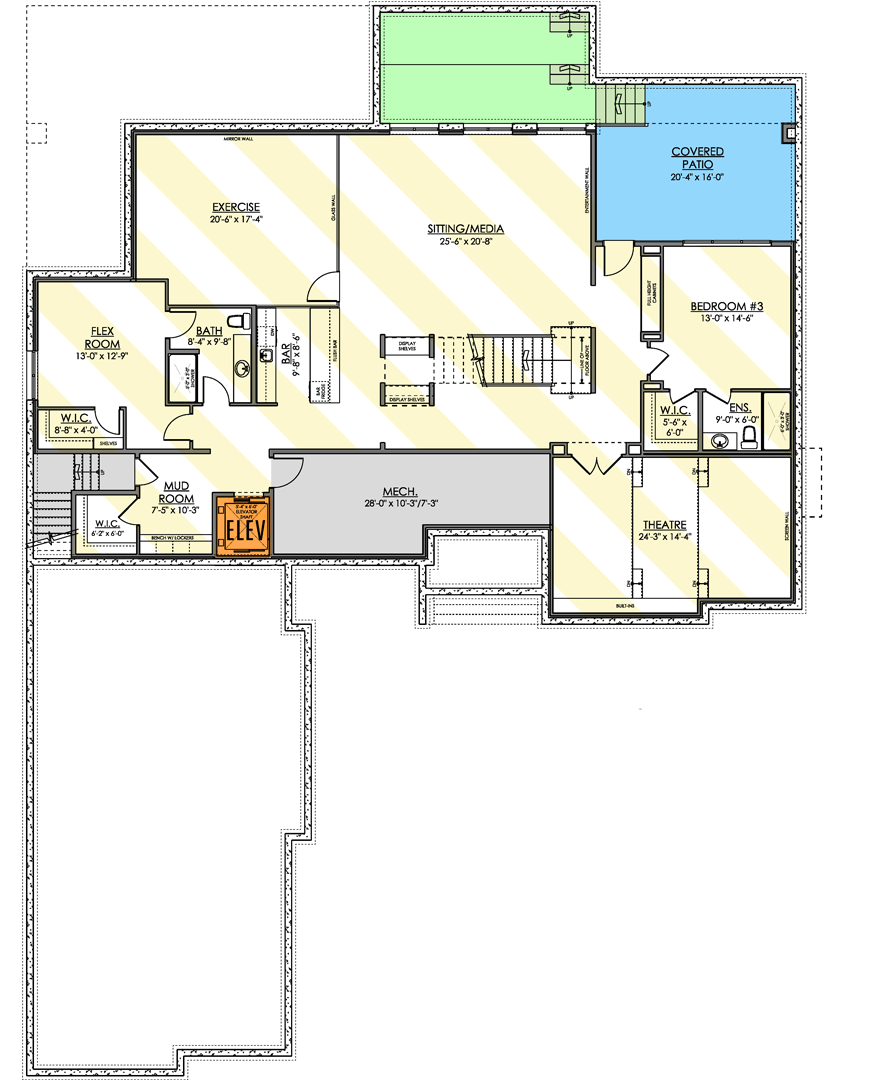
Optional Lower Level
2,667 sq. ft.
Bedrooms
6, 7, or 8
Full bathrooms
6
Half bathrooms
1
Standard Foundations
Basement
Exterior Walls
2x6
Width
79' 0"
Depth
97' 0"
Max Ridge Height
31' 2"
Type
Attached
Area
3255 sq. ft.
Count
4 Cars
Entry Location
Front, Courtyard
Lower Level
10' 2"
First Floor
10' 2"
Second Floor
10'
Primary Pitch
3 on 12
Framing Type
Truss
Total Heated Area
6,983 sq. ft.
1st Floor
3,228 sq. ft.
2nd Floor
3,755 sq. ft.
Optional Lower Level
2,667 sq. ft.
Bedrooms
6, 7, or 8
Full bathrooms
6
Half bathrooms
1
Standard Foundations
Basement
Exterior Walls
2x6
Width
79' 0"
Depth
97' 0"
Max Ridge Height
31' 2"
Type
Attached
Area
3255 sq. ft.
Count
4 Cars
Entry Location
Front, Courtyard
Lower Level
10' 2"
First Floor
10' 2"
Second Floor
10'
Primary Pitch
3 on 12
Framing Type
Truss