

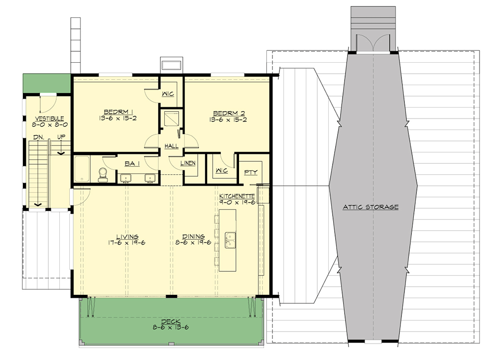
Total Heated Area
1,842 sq. ft.
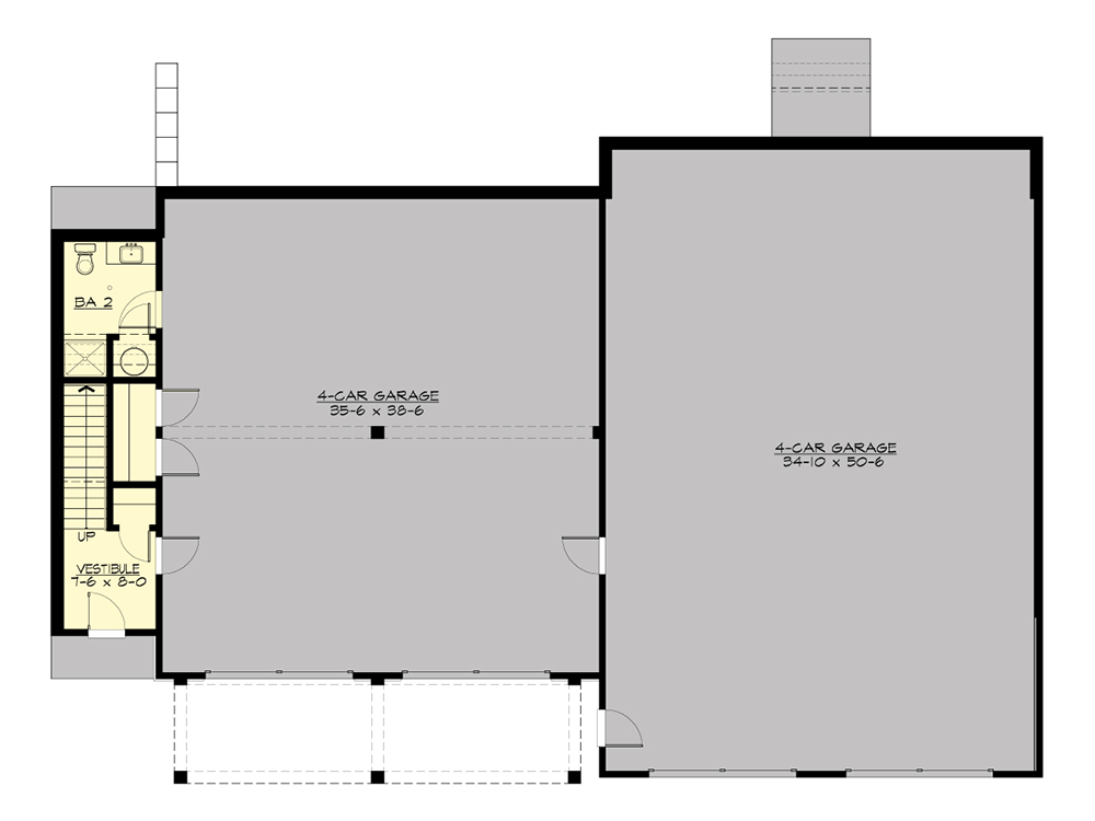
Lower Level
280 sq. ft.
1st Floor
1,562 sq. ft.
Bedrooms
2
Full bathrooms
2
Half bathrooms
1
Standard Foundations
Walkout
Exterior Walls
2x6
Width
80' 6"
Depth
52' 0"
Max Ridge Height
23' 6"
Type
Drive Under, Attached
Area
3312 sq. ft.
Count
4 Cars
Entry Location
Front
Lower Level
16'
First Floor
9'
Primary Pitch
10 on 12
Secondary Pitch
5 on 12
Total Heated Area
1,842 sq. ft.
Lower Level
280 sq. ft.
1st Floor
1,562 sq. ft.
Bedrooms
2
Full bathrooms
2
Half bathrooms
1
Standard Foundations
Walkout
Exterior Walls
2x6
Width
80' 6"
Depth
52' 0"
Max Ridge Height
23' 6"
Type
Drive Under, Attached
Area
3312 sq. ft.
Count
4 Cars
Entry Location
Front
Lower Level
16'
First Floor
9'
Primary Pitch
10 on 12
Secondary Pitch
5 on 12