

Total Heated Area
4,032 sq. ft.
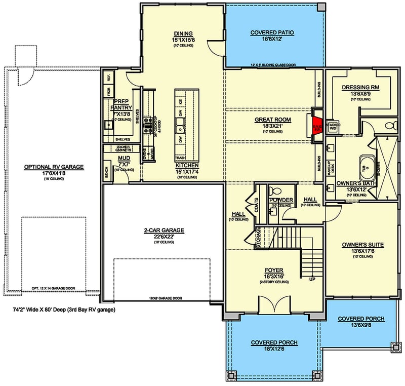
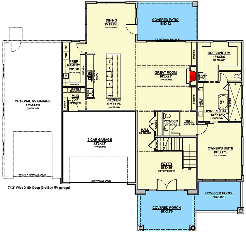
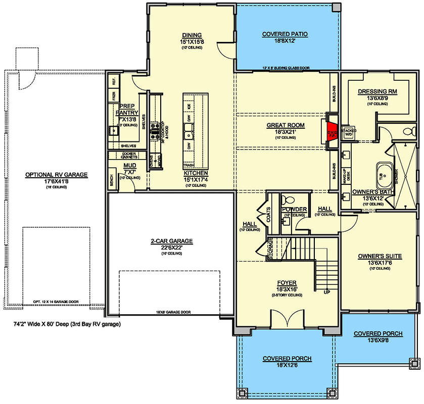
1st Floor
2,194 sq. ft.
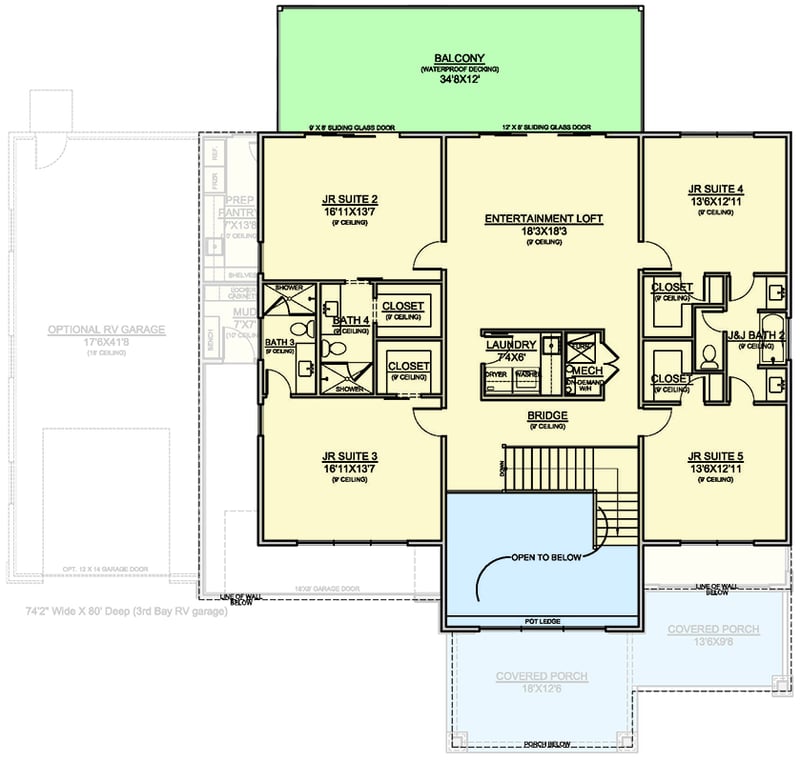
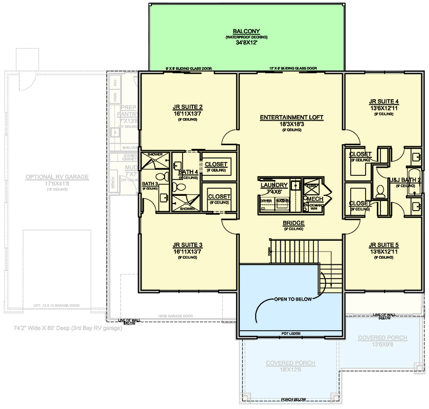
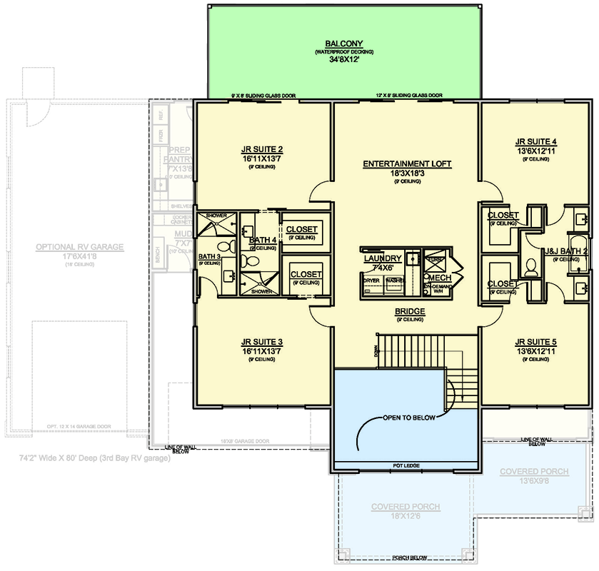
2nd Floor
1,838 sq. ft.
Porch, Front
354 sq. ft.
Balcony / Veranda
416 sq. ft.
Covered Patio
224 sq. ft.
Opt RV Garage
767 sq. ft.
Bedrooms
5
Full bathrooms
4
Half bathrooms
1
Standard Foundations
Slab
Exterior Walls
2x6
Width
56' 0"
Depth
80' 0"
Max Ridge Height
29' 5"
Type
Attached, RV Garage
Area
516 sq. ft.
Count
2 Cars
Entry Location
Front
First Floor
10' 1"
Second Floor
9' 1"
Room
Ceiling Type
Height
Entry
Flat
21' 1''
RV Garage
Flat
18' 1''
Primary Pitch
3 on 12
Secondary Pitch
4 on 12
Framing Type
Truss
Total Heated Area
4,032 sq. ft.
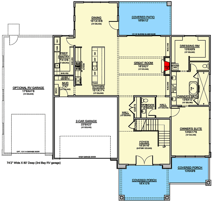
1st Floor
2,194 sq. ft.
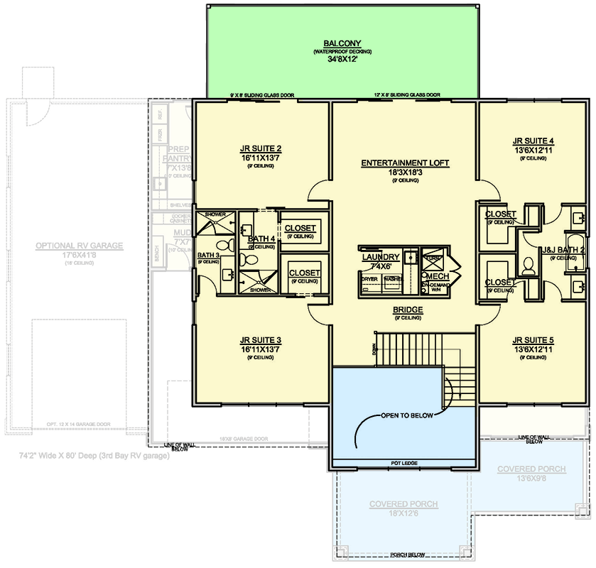
2nd Floor
1,838 sq. ft.
Porch, Front
354 sq. ft.
Balcony / Veranda
416 sq. ft.
Covered Patio
224 sq. ft.
Opt RV Garage
767 sq. ft.
Bedrooms
5
Full bathrooms
4
Half bathrooms
1
Standard Foundations
Slab
Exterior Walls
2x6
Width
56' 0"
Depth
80' 0"
Max Ridge Height
29' 5"
Type
Attached, RV Garage
Area
516 sq. ft.
Count
2 Cars
Entry Location
Front
First Floor
10' 1"
Second Floor
9' 1"
Room
Ceiling Type
Height
Entry
Flat
21' 1''
RV Garage
Flat
18' 1''
Primary Pitch
3 on 12
Secondary Pitch
4 on 12
Framing Type
Truss