

Total Heated Area
1,408 sq. ft.
1st Floor
1,408 sq. ft.
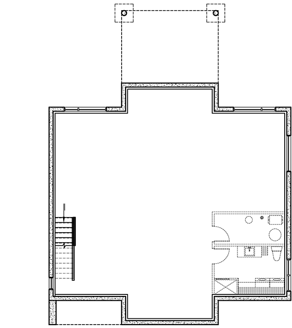
Basement Unfinished
1,408 sq. ft.
Bedrooms
1 or 2
Full bathrooms
1
Standard Foundations
Basement
Exterior Walls
2x6
Width
40' 0"
Depth
40' 0"
Max Ridge Height
23' 0"
Lower Level
8'
First Floor
9'
Second Floor
8'
Primary Pitch
12 on 12
Framing Type
Truss
Total Heated Area
1,408 sq. ft.
1st Floor
1,408 sq. ft.
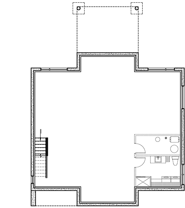
Basement Unfinished
1,408 sq. ft.
Bedrooms
1 or 2
Full bathrooms
1
Standard Foundations
Basement
Exterior Walls
2x6
Width
40' 0"
Depth
40' 0"
Max Ridge Height
23' 0"
Lower Level
8'
First Floor
9'
Second Floor
8'
Primary Pitch
12 on 12
Framing Type
Truss