


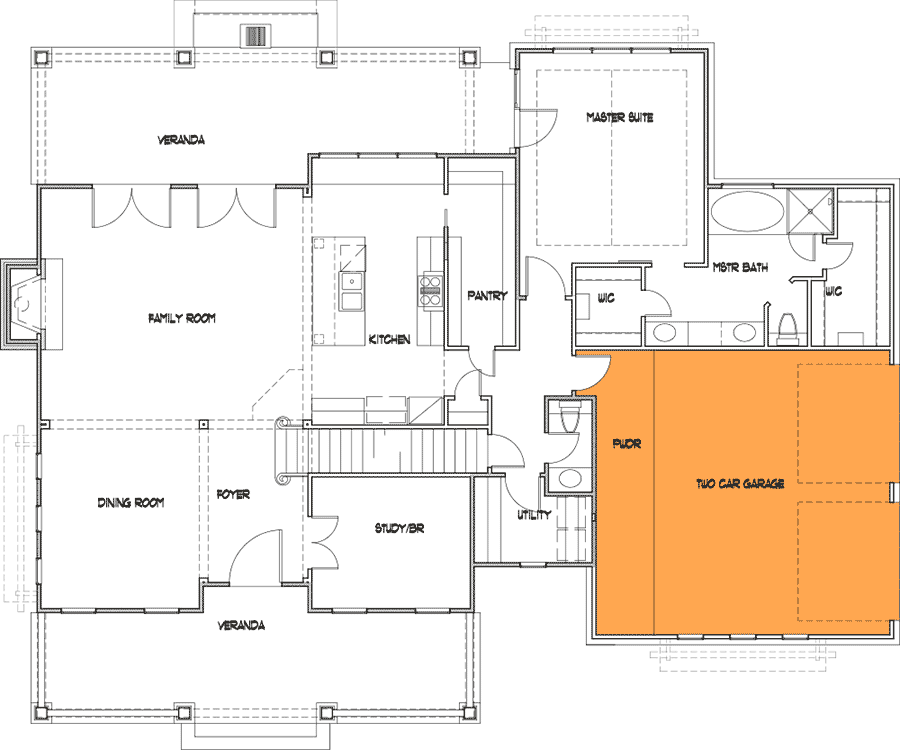
Total Heated Area
2,458 sq. ft.
1st Floor
1,766 sq. ft.
2nd Floor
692 sq. ft.
Bonus
340 sq. ft.
Porch, Front
550 sq. ft.
Porch, Rear
561 sq. ft.
Bedrooms
3 or 4
Full bathrooms
2
Half bathrooms
1
Standard Foundations
Slab
Exterior Walls
2x4
Optional Type(s)
2x6
Width
68' 7"
Depth
51' 7"
Max Ridge Height
33' 6"
Type
Attached
Area
507 sq. ft.
Count
2 Cars
Entry Location
Side
First Floor
10'
Second Floor
9'
Primary Pitch
12 on 12
Secondary Pitch
2 on 12
Framing Type
Stick
Total Heated Area
2,458 sq. ft.
1st Floor
1,766 sq. ft.
2nd Floor
692 sq. ft.
Bonus
340 sq. ft.
Porch, Front
550 sq. ft.
Porch, Rear
561 sq. ft.
Bedrooms
3 or 4
Full bathrooms
2
Half bathrooms
1
Standard Foundations
Slab
Exterior Walls
2x4
Optional Type(s)
2x6
Width
68' 7"
Depth
51' 7"
Max Ridge Height
33' 6"
Type
Attached
Area
507 sq. ft.
Count
2 Cars
Entry Location
Side
First Floor
10'
Second Floor
9'
Primary Pitch
12 on 12
Secondary Pitch
2 on 12
Framing Type
Stick