

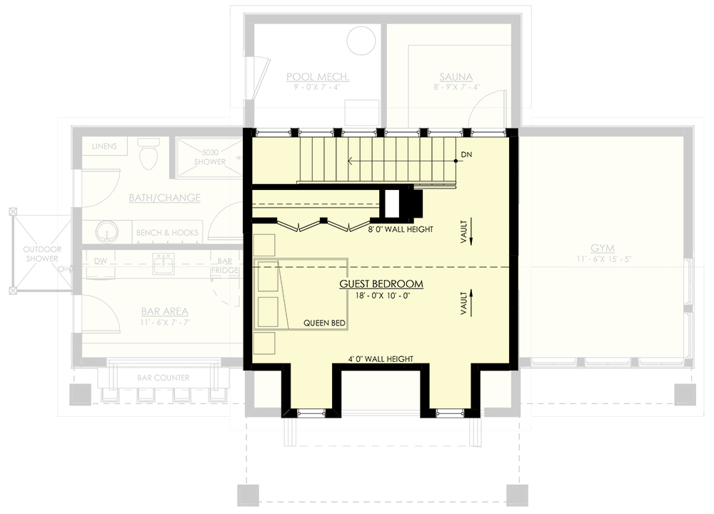
Total Heated Area
1,252 sq. ft.
1st Floor
925 sq. ft.
2nd Floor
328 sq. ft.
Bedrooms
1
Full bathrooms
1
Standard Foundations
Slab
Exterior Walls
2x6
Width
43' 0"
Depth
34' 0"
Max Ridge Height
21' 2"
First Floor
9'
Second Floor
8'
Primary Pitch
10 on 12
Secondary Pitch
4 on 12
Framing Type
Stick And Truss
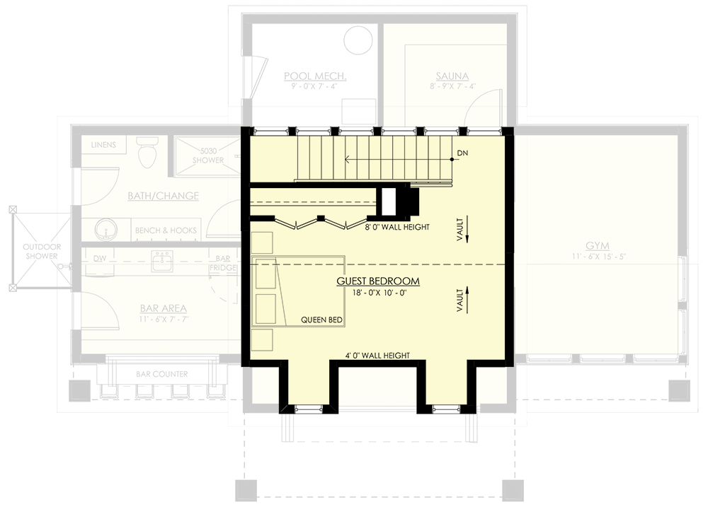
Total Heated Area
1,252 sq. ft.
1st Floor
925 sq. ft.
2nd Floor
328 sq. ft.
Bedrooms
1
Full bathrooms
1
Standard Foundations
Slab
Exterior Walls
2x6
Width
43' 0"
Depth
34' 0"
Max Ridge Height
21' 2"
First Floor
9'
Second Floor
8'
Primary Pitch
10 on 12
Secondary Pitch
4 on 12
Framing Type
Stick And Truss