

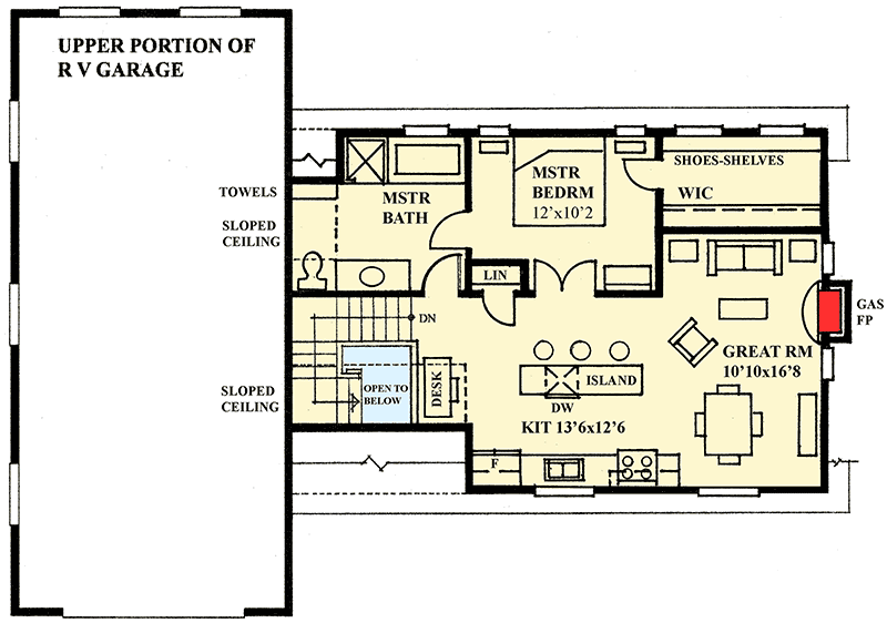
Total Heated Area
1,173 sq. ft.
1st Floor
369 sq. ft.
2nd Floor
804 sq. ft.
Bedrooms
2
Full bathrooms
1
Half bathrooms
1
Standard Foundations
Slab
Exterior Walls
2x6
Width
54' 0"
Depth
40' 0"
Max Ridge Height
26' 2"
Type
Detached, RV Garage
Area
1177 sq. ft.
Count
3 Cars
Entry Location
Front
First Floor
8'
Second Floor
8'
Primary Pitch
12 on 12
Secondary Pitch
5-Apr on 12
Total Heated Area
1,173 sq. ft.
1st Floor
369 sq. ft.
2nd Floor
804 sq. ft.
Bedrooms
2
Full bathrooms
1
Half bathrooms
1
Standard Foundations
Slab
Exterior Walls
2x6
Width
54' 0"
Depth
40' 0"
Max Ridge Height
26' 2"
Type
Detached, RV Garage
Area
1177 sq. ft.
Count
3 Cars
Entry Location
Front
First Floor
8'
Second Floor
8'
Primary Pitch
12 on 12
Secondary Pitch
5-Apr on 12