


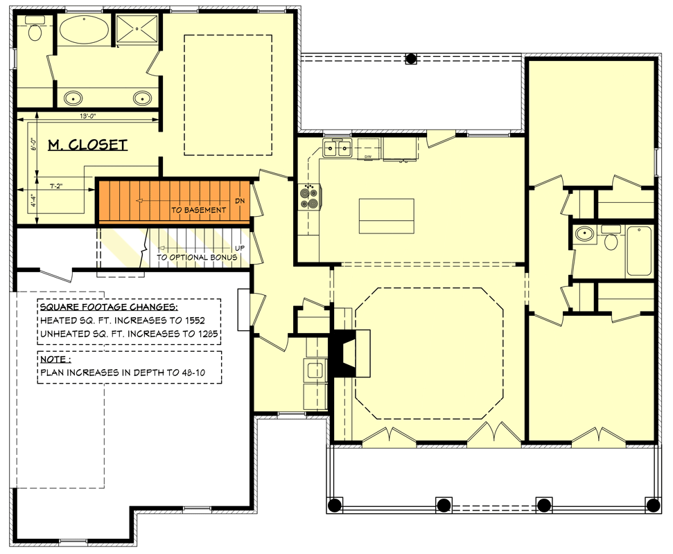
Total Heated Area
1,500 sq. ft.
1st Floor
1,500 sq. ft.
Bonus
325 sq. ft.
Porch, Front
180 sq. ft.
Porch, Rear
146 sq. ft.
Porch, Combined
326 sq. ft.
Storage
76 sq. ft.
Bedrooms
3
Full bathrooms
2
Standard Foundations
Slab
Exterior Walls
2x4
Optional Type(s)
2x6
Width
59' 0"
Depth
44' 6"
Max Ridge Height
24' 3"
Type
Attached
Area
483 sq. ft.
Count
2 Cars
Entry Location
Side
Lower Level
9' 4"
First Floor
9'
Second Floor
8'
Primary Pitch
8 on 12
Secondary Pitch
12 on 12
Framing Type
Stick
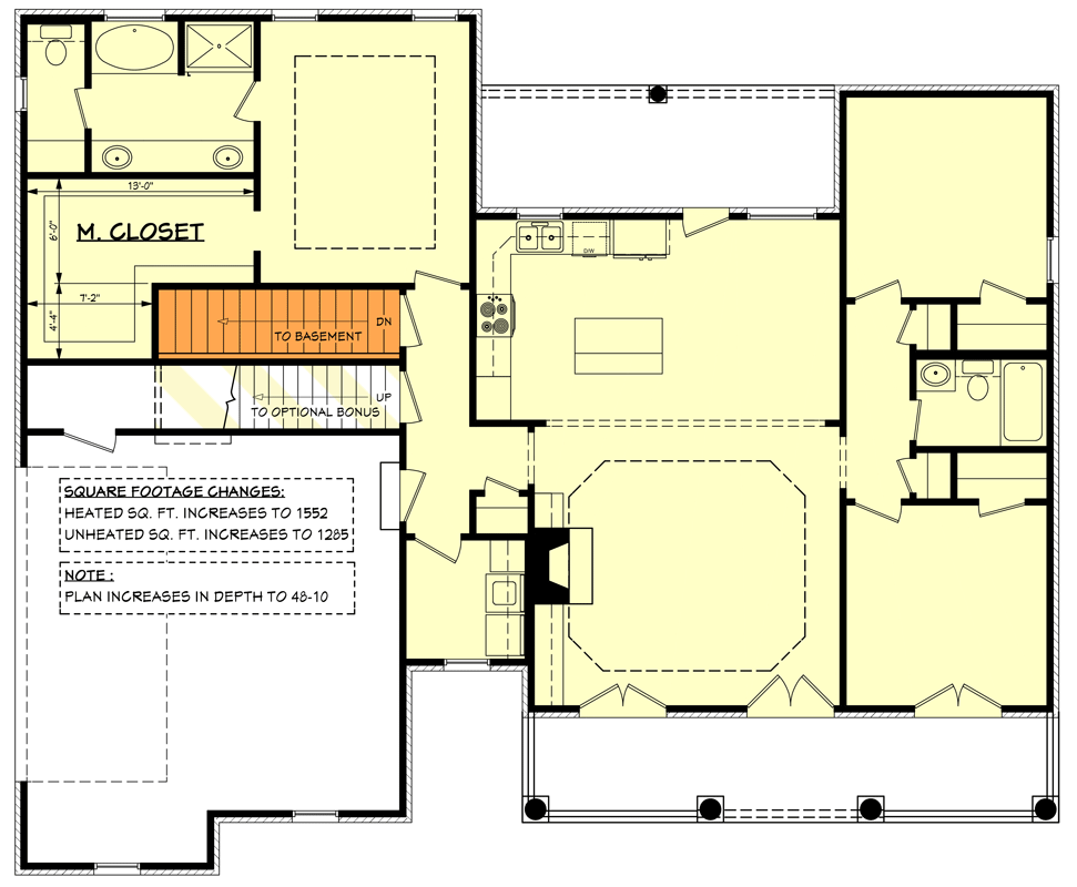
Total Heated Area
1,500 sq. ft.
1st Floor
1,500 sq. ft.
Bonus
325 sq. ft.
Porch, Front
180 sq. ft.
Porch, Rear
146 sq. ft.
Porch, Combined
326 sq. ft.
Storage
76 sq. ft.
Bedrooms
3
Full bathrooms
2
Standard Foundations
Slab
Exterior Walls
2x4
Optional Type(s)
2x6
Width
59' 0"
Depth
44' 6"
Max Ridge Height
24' 3"
Type
Attached
Area
483 sq. ft.
Count
2 Cars
Entry Location
Side
Lower Level
9' 4"
First Floor
9'
Second Floor
8'
Primary Pitch
8 on 12
Secondary Pitch
12 on 12
Framing Type
Stick