


Total Heated Area
3,140 sq. ft.
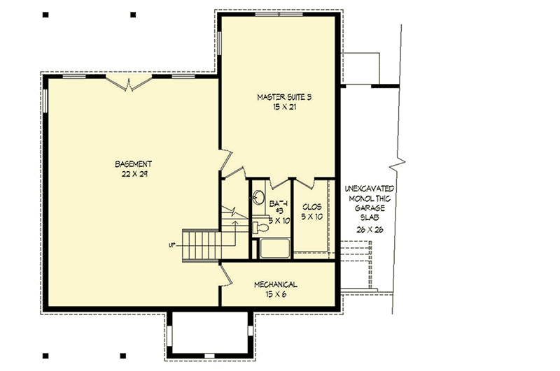
Lower Level
1,290 sq. ft.
1st Floor
1,354 sq. ft.
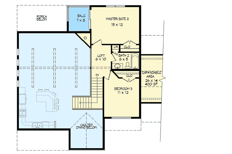
2nd Floor
496 sq. ft.
Porch, Combined
334 sq. ft.
Bedrooms
4
Full bathrooms
3
Half bathrooms
1
Standard Foundations
Basement
Exterior Walls
2x6
Width
64' 7"
Depth
44' 6"
Max Ridge Height
25' 10"
Type
Attached
Area
706 sq. ft.
Count
2 Cars
Entry Location
Front
First Floor
9'
Second Floor
8'
Room
Ceiling Type
Height
Great Room
Cathedral
0' 0''
Dining Room
Vaulted
0' 0''
Primary Pitch
10 on 12
Framing Type
Stick
Total Heated Area
3,140 sq. ft.
Lower Level
1,290 sq. ft.
1st Floor
1,354 sq. ft.
2nd Floor
496 sq. ft.
Porch, Combined
334 sq. ft.
Bedrooms
4
Full bathrooms
3
Half bathrooms
1
Standard Foundations
Basement
Exterior Walls
2x6
Width
64' 7"
Depth
44' 6"
Max Ridge Height
25' 10"
Type
Attached
Area
706 sq. ft.
Count
2 Cars
Entry Location
Front
First Floor
9'
Second Floor
8'
Room
Ceiling Type
Height
Great Room
Cathedral
0' 0''
Dining Room
Vaulted
0' 0''
Primary Pitch
10 on 12
Framing Type
Stick