

Total Heated Area
1,207 sq. ft.
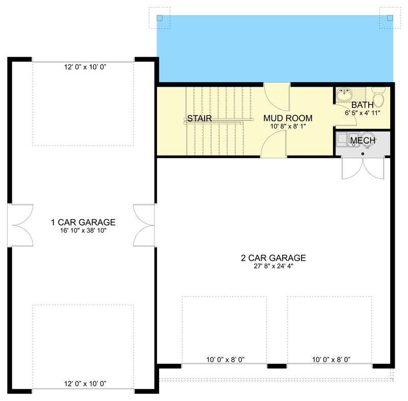
1st Floor
259 sq. ft.
2nd Floor
948 sq. ft.
Bedrooms
1
Full bathrooms
1
Half bathrooms
1
Standard Foundations
Stem Wall
Exterior Walls
2x4
Optional Type(s)
2x6
Width
46' 0"
Depth
40' 0"
Max Ridge Height
25' 10"
Type
Detached, RV Garage
Area
1420 sq. ft.
Count
3 Cars
Entry Location
Front, Rear
First Floor
10'
Primary Pitch
3 on 12
Secondary Pitch
6 on 12
Framing Type
Stick
Total Heated Area
1,207 sq. ft.
1st Floor
259 sq. ft.
2nd Floor
948 sq. ft.
Bedrooms
1
Full bathrooms
1
Half bathrooms
1
Standard Foundations
Stem Wall
Exterior Walls
2x4
Optional Type(s)
2x6
Width
46' 0"
Depth
40' 0"
Max Ridge Height
25' 10"
Type
Detached, RV Garage
Area
1420 sq. ft.
Count
3 Cars
Entry Location
Front, Rear
First Floor
10'
Primary Pitch
3 on 12
Secondary Pitch
6 on 12
Framing Type
Stick