

Total Heated Area
3,477 sq. ft.
1st Floor
2,190 sq. ft.
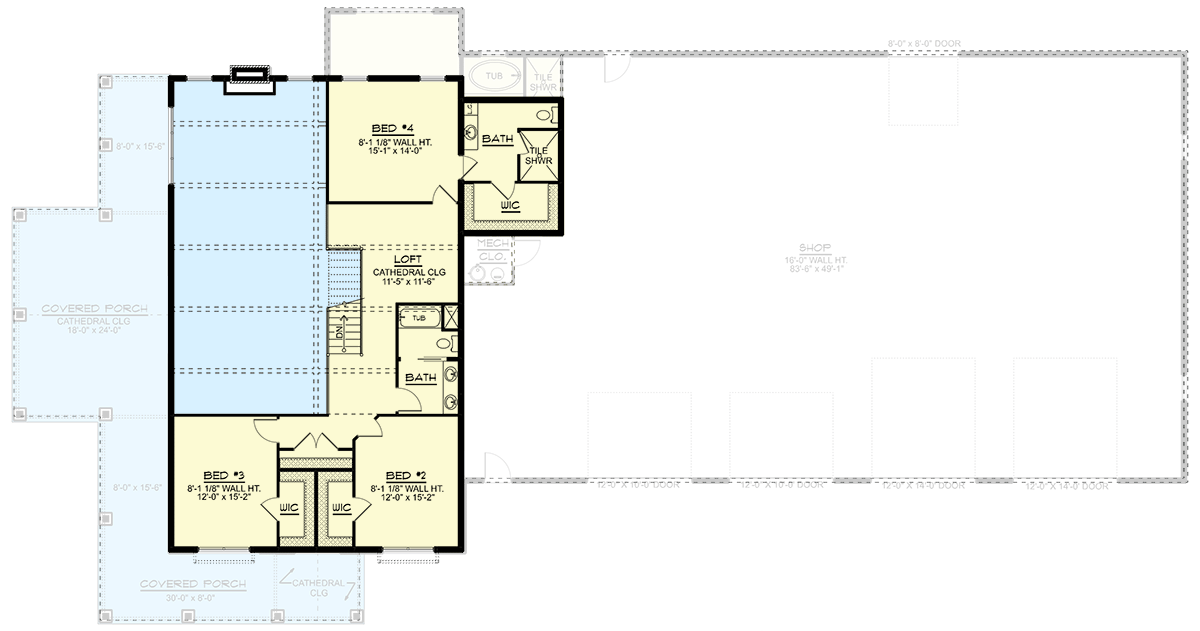
2nd Floor
1,287 sq. ft.
Porch, Combined
917 sq. ft.
Bedrooms
4
Full bathrooms
3
Half bathrooms
2
Standard Foundations
Slab
Exterior Walls
2x6
Width
136' 0"
Depth
71' 0"
Max Ridge Height
28' 8"
Type
Attached, RV Garage
Area
4006 sq. ft.
Count
4 Cars
Entry Location
Front
First Floor
9'
Second Floor
8'
Primary Pitch
7 on 12
Secondary Pitch
5 on 12
Total Heated Area
3,477 sq. ft.
1st Floor
2,190 sq. ft.
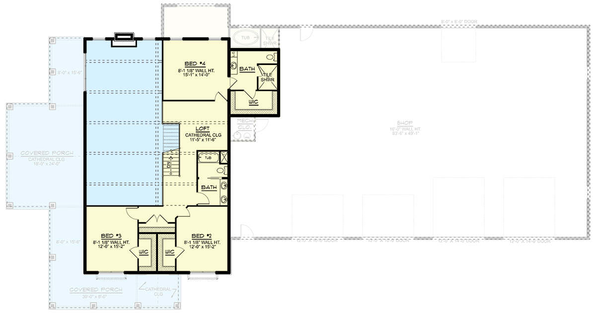
2nd Floor
1,287 sq. ft.
Porch, Combined
917 sq. ft.
Bedrooms
4
Full bathrooms
3
Half bathrooms
2
Standard Foundations
Slab
Exterior Walls
2x6
Width
136' 0"
Depth
71' 0"
Max Ridge Height
28' 8"
Type
Attached, RV Garage
Area
4006 sq. ft.
Count
4 Cars
Entry Location
Front
First Floor
9'
Second Floor
8'
Primary Pitch
7 on 12
Secondary Pitch
5 on 12