LogoLogo TaglineLogo Tagline
Loading...
Plan 680087VR

Contemporary 2-Bed House Plan Under 1200 Square Feet with Drive-Under Parking

Heated S.F.
1,195
Beds
2
Baths
1
Stories
2
Cars
2

Floor Plan

Plan 680087VR

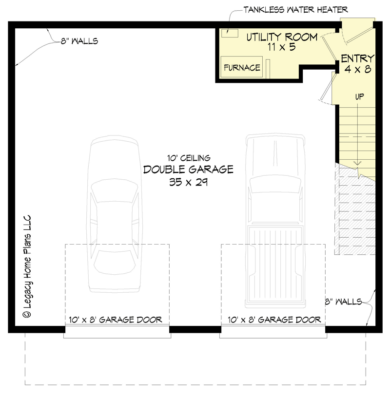
Main Level
Main Level
2nd Floor
2nd Floor

Plan 680087VR

M-F 9am-5pm EST |

1-203-761-8500

Main Level

Plan 680087VR: Contemporary 2-Bed House Plan Under 1200 Square Feet with Drive-Under Parking - Floor Plan - Main Level - Contemporary, Mountain

2nd Floor

Plan 680087VR: Contemporary 2-Bed House Plan Under 1200 Square Feet with Drive-Under Parking - Floor Plan - 2nd Floor - Contemporary, Mountain

Plan Details

  • This contemporary house plan is great for a mountain home or a lake house and gives you 2 beds, 1 bath and 1,195 square feet of heated living.
  • On the main level, matching 10' by 8' overhead doors get your vehicles access to the 965 square feet of parking inside. A person door on the back-right wall gets you in on foot with stairs going up along the side.
  • The stairs deposit you in the living room with a sloped ceiling that is open to the kitchen with a peninsula giving you casual seating for up to three.
  • Two bedrooms share the bath and a laundry room is conveniently located to each of them.
  • Related Plans: Get alternate versions with house plans 68541VR and 68779VR.

What's Included

  • Floor Plans: House plan drawings indicating dimensions for construction
  • Roof Plan: Drawings indicating roof slopes and unique conditions
  • Exterior Elevations: Drawings showing appearance and the types of materials used for the exterior finish and trim
  • Building Sections: Drawings cut through important locations in the structure
  • Construction Details: Drawings showing specific construction of building elements at a large scale
  • Kitchen and bath elevations (excluded on garage plans)
  • Electrical Plans: Basic electrical layout (suggested locations of fixtures, switches and outlets)
  • Foundation Plan: Dimensioned drawings describing specific foundation conditions for the structure
  • Building license: A single-use license for construction at one location only

View Sample Plan

What's Not Included

  • Architectural or Engineering Stamp - handled locally if required
  • Site Plan - handled locally when required
  • Mechanical Drawings (location of heating and air equipment and duct work) - your subcontractors handle this
  • Plumbing Drawings (drawings showing the actual plumbing pipe sizes and locations) - your subcontractors handle this
  • Energy calculations - handled locally when required

Starting at

Loading...
Price Match Guarantee
What's included?

FORMAT & LICENSE

Choose an option

$0

Not sure what to choose?

Pointer link icon

FOUNDATION

Choose an option

+$0

OPTIONS

Choose Additional Options

+$0

Loading...

Modify this Plan

Receive a free modification quote within 3 business days.

Loading...

Start with a Cost Report

Calculate the cost to build & furnish your home.

Loading...
Loading...

Square Footage Breakdown

Total Heated Area

1,195 sq. ft.

1st Floor

115 sq. ft.

2nd Floor

1,080 sq. ft.

Balcony / Veranda

165 sq. ft.

Beds/Baths

Bedrooms

2

Full bathrooms

1

Foundation Type

Standard Foundations

Slab

Exterior Walls

Exterior Walls

2x6

Dimensions

Width

35' 0"

Depth

36' 0"

Max Ridge Height

26' 4"

Garage

Type

Drive Under

Area

965 sq. ft.

Count

2 Cars

Entry Location

Front

Ceiling Heights

Lower Level

8'

First Floor

7'

Room

Ceiling Type

Height

Bedroom 1

Slope

7' 0''

Living Room

Slope

13' 0''

Roof Details

Primary Pitch

2.5 on 12

Architectural Style

Contemporary

Plan Collections

Square Footage Breakdown

Total Heated Area

1,195 sq. ft.

1st Floor

115 sq. ft.

2nd Floor

1,080 sq. ft.

Balcony / Veranda

165 sq. ft.

Beds/Baths

Bedrooms

2

Full bathrooms

1

Foundation Type

Standard Foundations

Slab

Exterior Walls

Exterior Walls

2x6

Dimensions

Width

35' 0"

Depth

36' 0"

Max Ridge Height

26' 4"

Garage

Type

Drive Under

Area

965 sq. ft.

Count

2 Cars

Entry Location

Front

Ceiling Heights

Lower Level

8'

First Floor

7'

Room

Ceiling Type

Height

Bedroom 1

Slope

7' 0''

Living Room

Slope

13' 0''

Roof Details

Primary Pitch

2.5 on 12

Architectural Style

Plan Collections

* Please note that all sale prices and promotions featured on our website are subject to change without prior notice. While we strive to provide accurate and up-to-date information, occasional discrepancies may occur due to factors beyond our control. We encourage you to verify all details, including pricing and availability, before making any purchase. Exclusions or restrictions may apply to specific promotions. We reserve the right to modify or cancel any sale at our discretion. Thank you for your understanding and happy shopping!Let's go back to the top.