

Total Heated Area
2,115 sq. ft.
1st Floor
1,050 sq. ft.
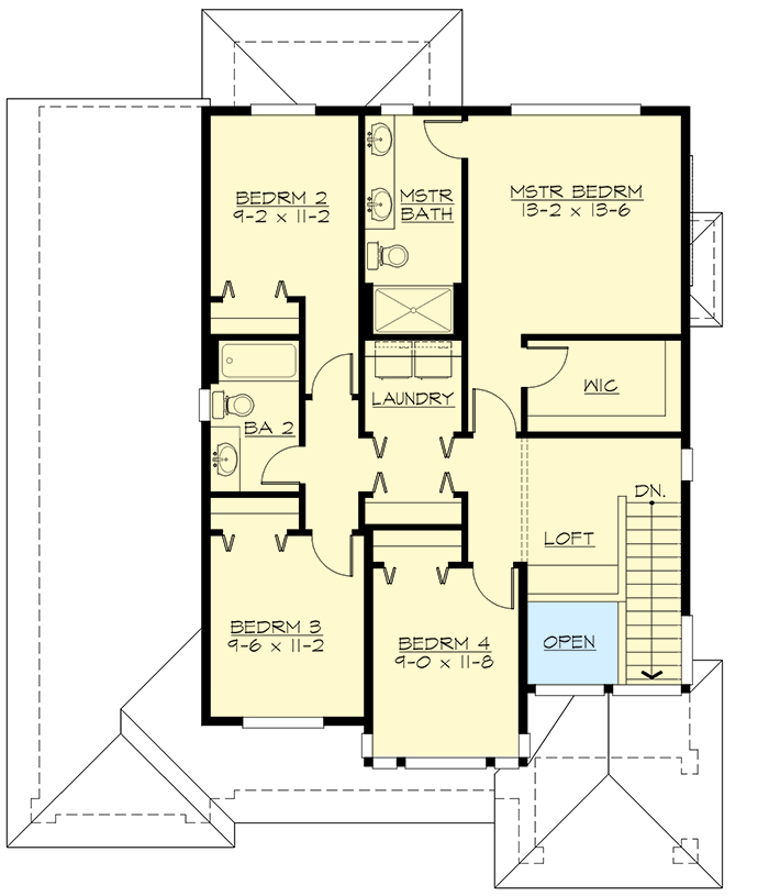
2nd Floor
1,065 sq. ft.
Bedrooms
4
Full bathrooms
2
Half bathrooms
1
Standard Foundations
Crawl
Exterior Walls
2x6
Width
41' 0"
Depth
50' 6"
Max Ridge Height
24' 0"
Type
Attached
Area
675 sq. ft.
Count
3 Cars
Entry Location
Front
First Floor
9'
Second Floor
8'
Primary Pitch
4 on 12
Framing Type
Truss
Total Heated Area
2,115 sq. ft.
1st Floor
1,050 sq. ft.
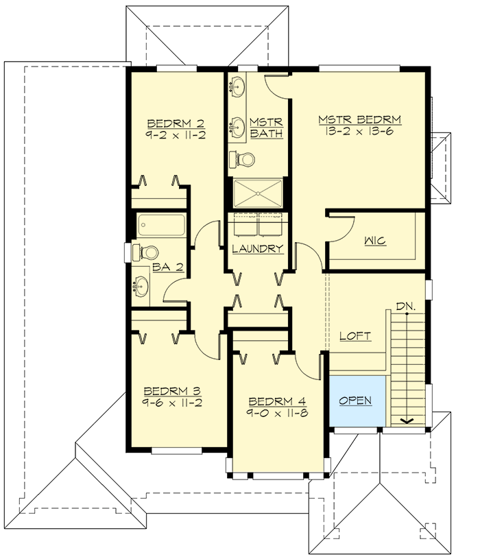
2nd Floor
1,065 sq. ft.
Bedrooms
4
Full bathrooms
2
Half bathrooms
1
Standard Foundations
Crawl
Exterior Walls
2x6
Width
41' 0"
Depth
50' 6"
Max Ridge Height
24' 0"
Type
Attached
Area
675 sq. ft.
Count
3 Cars
Entry Location
Front
First Floor
9'
Second Floor
8'
Primary Pitch
4 on 12
Framing Type
Truss