



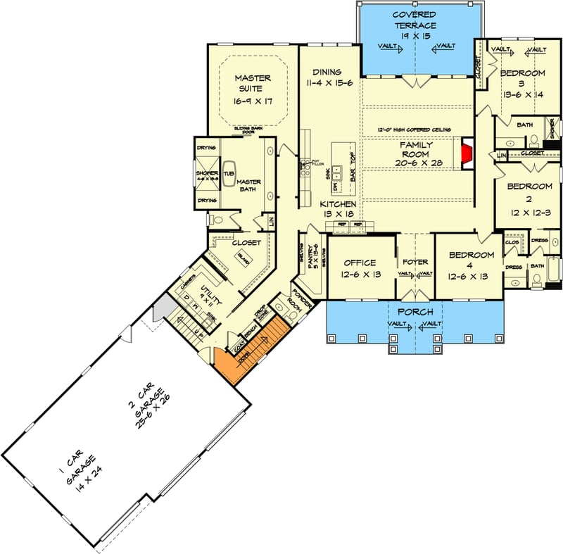
Total Heated Area
3,206 sq. ft.
1st Floor
3,206 sq. ft.
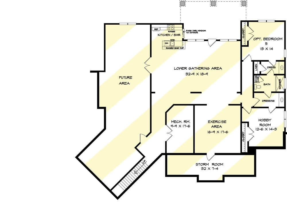
Bonus
540 sq. ft.
Porch, Front
286 sq. ft.
Deck
315 sq. ft.
Bedrooms
4
Full bathrooms
4
Half bathrooms
1
Standard Foundations
Slab, Walkout
Exterior Walls
2x4
Width
105' 2"
Depth
103' 2"
Max Ridge Height
32' 9"
Type
Attached
Area
1032 sq. ft.
Count
3 Cars
Entry Location
Front
First Floor
9'
Room
Ceiling Type
Height
Family Room
Vaulted
11' 6''
Bonus
Flat
9' 0''
Primary Pitch
6 on 12
Secondary Pitch
12 on 12
Framing Type
Truss
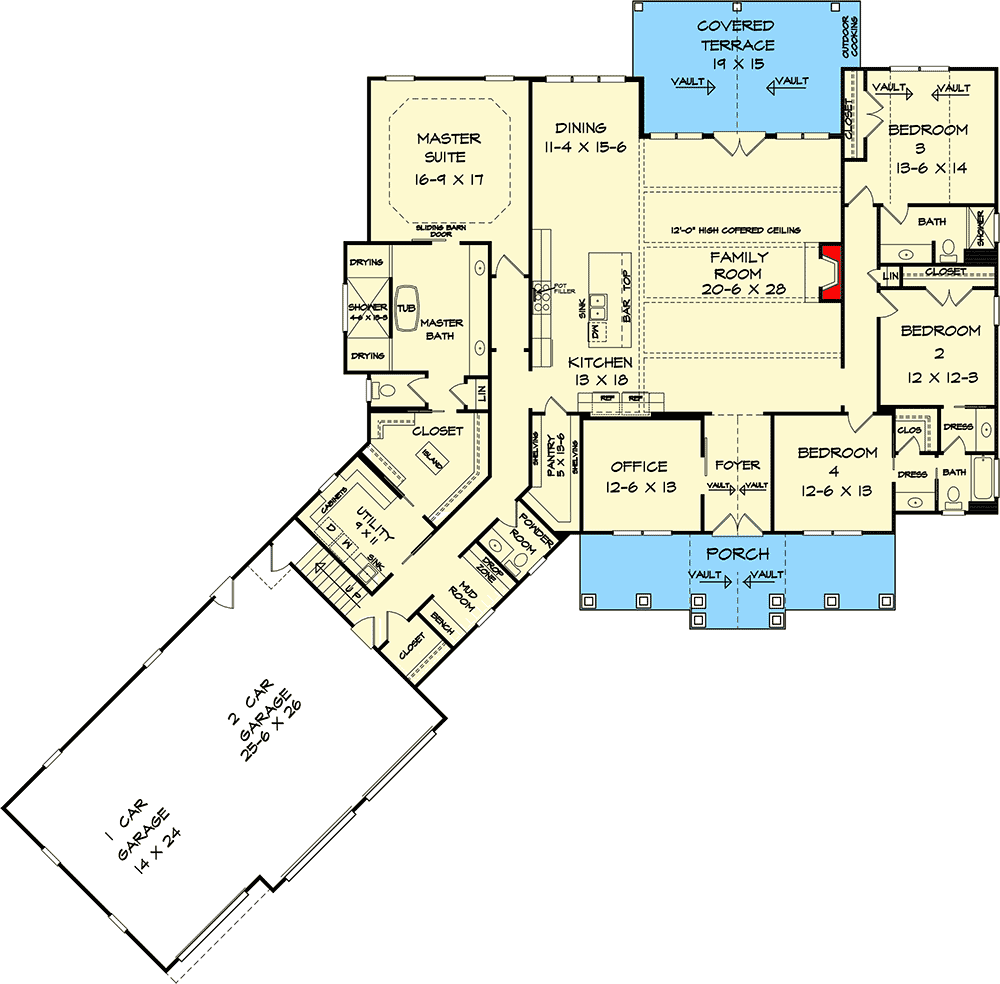
Total Heated Area
3,206 sq. ft.
1st Floor
3,206 sq. ft.
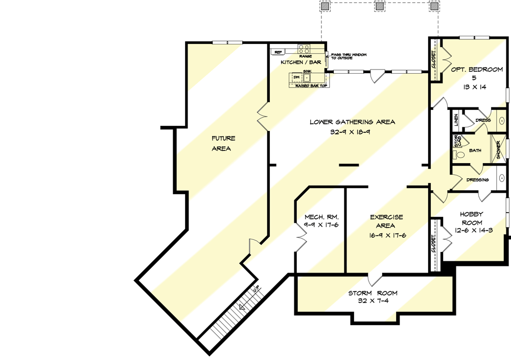
Bonus
540 sq. ft.
Porch, Front
286 sq. ft.
Deck
315 sq. ft.
Bedrooms
4
Full bathrooms
4
Half bathrooms
1
Standard Foundations
Slab, Walkout
Exterior Walls
2x4
Width
105' 2"
Depth
103' 2"
Max Ridge Height
32' 9"
Type
Attached
Area
1032 sq. ft.
Count
3 Cars
Entry Location
Front
First Floor
9'
Room
Ceiling Type
Height
Family Room
Vaulted
11' 6''
Bonus
Flat
9' 0''
Primary Pitch
6 on 12
Secondary Pitch
12 on 12
Framing Type
Truss