

Total Heated Area
2,000 sq. ft.
1st Floor
2,000 sq. ft.
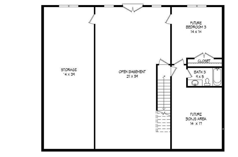
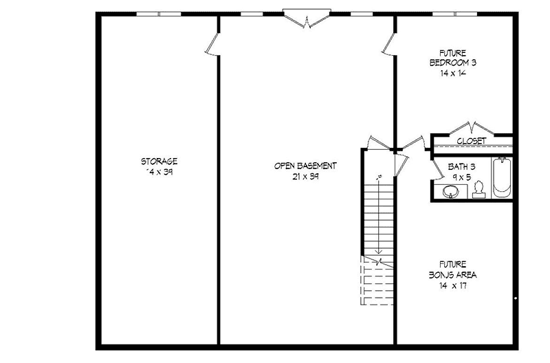
Basement Unfinished
2,000 sq. ft.
Porch, Front
500 sq. ft.
Deck
260 sq. ft.
Bedrooms
2 or 3
Full bathrooms
2 or 3
Half bathrooms
1
Standard Foundations
Basement
Exterior Walls
2x4
Optional Type(s)
2x6
Width
60' 0"
Depth
50' 0"
Max Ridge Height
20' 5"
Lower Level
8'
First Floor
9'
Primary Pitch
8.5 on 12
Secondary Pitch
12 on 12
Framing Type
Stick
Total Heated Area
2,000 sq. ft.
1st Floor
2,000 sq. ft.
Basement Unfinished
2,000 sq. ft.
Porch, Front
500 sq. ft.
Deck
260 sq. ft.
Bedrooms
2 or 3
Full bathrooms
2 or 3
Half bathrooms
1
Standard Foundations
Basement
Exterior Walls
2x4
Optional Type(s)
2x6
Width
60' 0"
Depth
50' 0"
Max Ridge Height
20' 5"
Lower Level
8'
First Floor
9'
Primary Pitch
8.5 on 12
Secondary Pitch
12 on 12
Framing Type
Stick